loading

2121 Hepburn St #707

Houston, TX 77054
Get Directions →
For Sale
Under Contract - OP
2 Bedroom(s)
1 Full Bath(s)
948 Sqft
131,484 Lot Sqft
Townhouse/Condo - Condominium

Audio narrative

Get full access to Premium Content

Premium Content such as Sold Prices, Property History Reports and Saved Searches.

Sign in to view Premium Content

Description

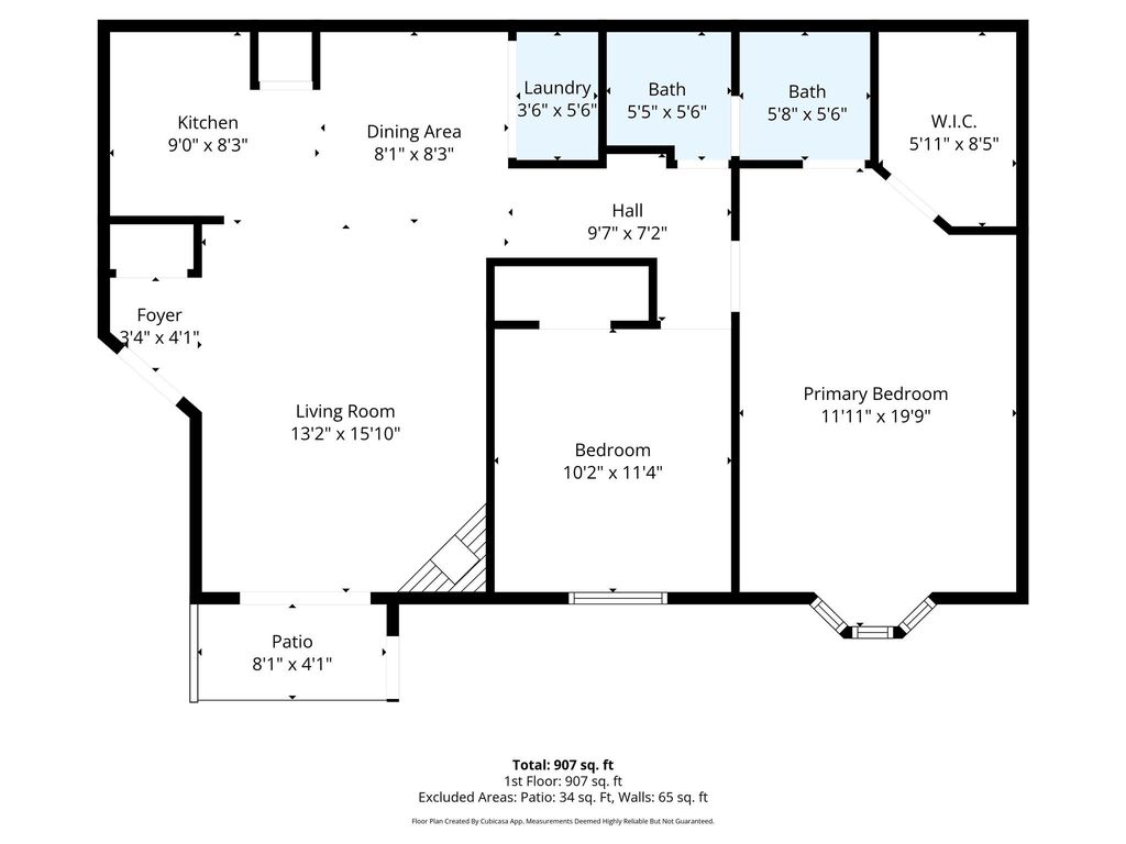
Move-in ready just minutes from the Texas Medical Center, NRG Stadium, and Rice University, this first-floor 2-bedroom, 1-bath condo offers exceptional convenience and comfortable living. Perfect for Medical Center professionals, students, or investors seeking a high-demand, safe location. The spacious layout features a large primary bedroom with an oversized walk-in closet and a beautifully updated full bath. Enjoy the cozy wood-burning fireplace and relax on the private covered patio with additional storage. This home also includes in-unit laundry, a designated covered carport, and ample guest parking. The well-maintained community features a sparkling pool and attractive landscaped grounds. Quick access to the 610 Loop and major freeways. Just minutes from Baylor College of Medicine, UT Dental School, Downtown Houston, UT shuttle within walking distance. Seller may consider selling furnished. Schedule your showing today!

MLS#
81369061
List Price
$125,000 ($132/Sqft.)
Listing Status
Under Contract - OP
Address
2121 Hepburn St #707
Unit No.
707
City
Houston
State
TX
Zip Code
77054
County
Harris County
Legal Description
UNIT 707 BLDG G .646 INT COMMON LAND & ELE MONTREAL PLACE CO
Property Type
Townhouse/Condo - Condominium
Bedroom
2 Bedroom(s)
Bath
1 Full Bath(s)
Stories
1
Building Size
948 Sqft/Appraisal District
Architecture Style
Traditional
Year Built
1983 /Appraisal District
Lot Size
131,484 Sqft/Appraisal District
Maintenance Fee
$440 / Monthly
Key Map©
533J
Market Area

Exterior

Roof
Composition
Foundation
Slab
Private Pool
No
Exterior Type
Brick, Other
Water Sewer
Public Sewer, Public Water
Unit Location
On Street
Area Pool
Yes

Financial information

Financing Considered
Cash Sale, Conventional
Other Fees
Yes / 225 / Transfer Fee
Ownership
Full Ownership
Maintenance Fee
Yes / $440 / Monthly
Maint Fee Includes
Clubhouse,Common Grounds,Courtesy Patrol,Garbage Service,Insurance,Limited Access Gates,On Site Guard,Water and Sewer
Taxes w/o Exemp
$3,297/2025
Tax Rate
2.2402

Interior

Fireplace
1
Cooling
Central Electric
Heating
Central Electric
Energy Feature
Ceiling Fans

Extra details you may need to know

List Type
Exclusive Right to Sell/Lease

Rooms

Primary Bedroom
20 x 12, 1st
Bedroom
12 x 10, 1st

Lot Information

Lot Size
131,484 Sqft. /Appraisal District
loading
Disclaimer: Lot configuration and dimensions are estimates, not based on personal knowledge and come from a third party (Digital Map Products); therefore, you should not rely on the estimates and perform independent confirmation as to their accuracy
Ready to Sell your Home?
If you like this property and are also considering selling your current home now, you may find out how. Request your home selling analysis report featuring Recently Sold, Market Analysis, Home Valuations, and Market Update.
Start Selling your Home

Listing Broker

Information source

Houston Association of REALTORS®
Source last updated Apr 15, 2026 at 04:57 PM
Listing last updated Apr 08, 2026 at 01:36 PM
View website →

Know the property tax history and market value

Cost/Sqft based on tax value

------------------------------
---------- ---------- ---------- ----------
---------- ---------- ---------- ----------
---------- ---------- ---------- ----------
---------- ---------- ---------- ----------
---------- ---------- ---------- ----------
---------- ---------- ---------- ----------

-------------

-------------
------------- -------------
------------- -------------
-------------------------- -------------
-------------------------- -------------
------------- -------------

-------------

-------------
------------- -------------
------------- -------------
------------- -------------
------------- -------------
------------- -------------

Estimate your mortgage payments

Create and estimate your monthly mortgage payment and property taxes based on past rates.

Estimated Monthly Payments

DOWN PAYMENT
Loan Term
$-----
$-----
Full Page
Presented by TimeValue Software ©2021
Principal & InterestTaxes30.4%69.6%
Listing TaxNumbers
Principal & Interest2,841
Taxes1,242
--------
-------- --------

Explore school information

Check out assigned and nearby schools along with their detailed ratings and essential information to help you make informed decisions.

Assigned schools

View nearby schools view nearby schools

Notice & Disclaimer
School information is computer generated and may not be accurate or current. Buyer must independently verify and confirm enrollment. Please contact the school district to determine the schools to which this property is zoned.
Copyright© 2026 , HOUSTON REALTORS® INFORMATION SERVICE, INC. All Rights Reserved. Data Not Verified/Guaranteed by MLS
Schedule a tour
Tomorrow
16
Apr
Fri
17
Apr
Sat
18
Apr
Sun
19
Apr
Other dates
Contact agent
Call Callback request

Schedule a Tour

Thu
16
Apr
Fri
17
Apr
Sat
18
Apr
Sun
19
Apr
Mon
20
Apr
Tue
21
Apr
Wed
22
Apr
Thu
23
Apr
Fri
24
Apr
Sat
25
Apr