loading

1720 Bevis St

Houston, TX 77008
Get Directions →
2 Bedroom(s)
2 Full Bath(s)
1,644 Sqft
2,159 Lot Sqft
Townhouse/Condo - Townhouse

Audio narrative

Get full access to Premium Content

Premium Content such as Sold Prices, Property History Reports and Saved Searches.

Sign in to view Premium Content

Description

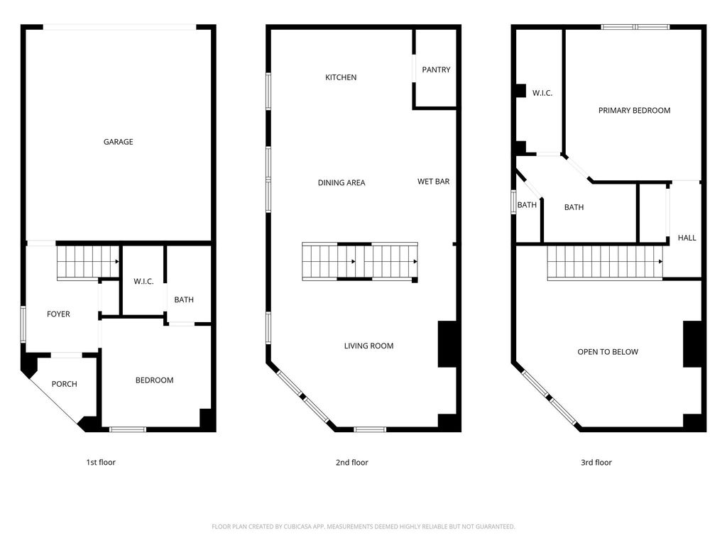
This quality-built Perry Homes T/H END Unit in desirable Greater Heights offers walkable access to local boutiques, vibrant dining, parks & a thriving art scene—all just steps away. A gated front yard with green space welcomes you to a charming porch. Inside, the 1st floor features a bright foyer with closet, garage access, & a private guest suite with walk-in closet & full bath. The 2nd floor showcases open-concept living with soaring ceilings, plantation shutters & a dining area with included entertainment bar & stylish brick accent wall. The kitchen includes a refrigerator, white cabinetry, granite countertops, bar seating & an oversized pantry. The 3rd floor features a spacious owner’s retreat & bath with dual vanity, garden tub/shower combo with seamless glass & a huge closet. A 2-car attached garage plus guest street parking adds convenience. Recent updates include roof 2025, water heater 2025 & interior paint 2026. NO FLOODING. Move-In Ready! Live, Work & Play NOW!

MLS#
64719315
List Price
$340,000 ($207/Sqft.)
Listing Status
For Sale
Address
1720 Bevis St
City
Houston
State
TX
Zip Code
77008
County
Harris County
Legal Description
LT 43 BLK 1 WEST EIGHTEENTH STREET T/H
Property Type
Townhouse/Condo - Townhouse
Bedroom
2 Bedroom(s)
Bath
2 Full Bath(s)
Garages
2 / Attached
Stories
3
Building Size
1,644 Sqft/Appraisal District
Architecture Style
Traditional
Year Built
2003 /Appraisal District
Lot Size
2,159 Sqft/Appraisal District
Maintenance Fee
$2,405 / Annually
Key Map©
452U

Rooms

Family Room
17 x 15, 2nd
Dining
17 x 14, 2nd
Kitchen
13 x 6, 2nd
Primary Bedroom
16 x 14, 3rd
Bedroom
12 x 12, 1st
Primary Bath
7 x 9, 3rd
Bath
1st
Utility Room Desc
6 x 9, 3rd

Exterior

Roof
Composition
Foundation
Slab
Private Pool
No
Exterior Type
Cement Board
Parking
Auto Garage Door Opener
Water Sewer
Public Sewer, Public Water
Front Door Face
West
Unit Location
On Street
Area Pool
No
Exterior
Fenced, Front Green Space, Sprinkler System

Financial information

Financing Considered
Cash Sale, Conventional, FHA, VA
Other Fees
Yes / 250 / Estimated Transfer Fee
Ownership
Full Ownership
Maintenance Fee
Yes / $2405 / Annually
Maint Fee Includes
Common Grounds,Garbage Service,Lawn Care,Water and Sewer
Taxes w/o Exemp
$7,706/2025
Tax Rate
2.1252

Extra details you may need to know

List Type
Exclusive Right to Sell/Lease

Interior

Pets Allowed
W/ Restrictions
Floors
Carpet, Tile, Wood
Bathroom Description
Primary Bath: Double Sinks, Primary Bath: Soaking Tub, Primary Bath: Tub/Shower Combo, Secondary Bath(s): Tub/Shower Combo
Bedroom Description
1 Bedroom Down - Not Primary BR,1 Bedroom Up,En-Suite Bath,Primary Bed - 3rd Floor,Walk-In Closet
Kitchen Description
Breakfast Bar,Island w/o Cooktop,Walk-in Pantry
Room Description
Family Room, Formal Dining
Cooling
Central Electric
Heating
Central Gas
Washer/Dryer Conn
Yes
Compactor
No
Dishwasher
Yes
Disposal
Yes
Ice Maker
No
Microwave
Yes
Oven
Gas Oven, Single Oven
Range
Gas Range
Appliances
Dryer Included, Gas Dryer Connections, Refrigerator
Energy Feature
Ceiling Fans, Digital Program Thermostat, Insulated Doors, Insulated/Low-E windows, Insulation - Batt, Insulation - Blown Cellulose
Interior
Alarm System - Owned, Brick Walls, Fire/Smoke Alarm, Formal Entry/Foyer, High Ceiling, Open Ceiling, Refrigerator Included, Vaulted Ceiling, Window Coverings

Lot Information

Lot Size
2,159 Sqft. /Appraisal District
loading
Disclaimer: Lot configuration and dimensions are estimates, not based on personal knowledge and come from a third party (Digital Map Products); therefore, you should not rely on the estimates and perform independent confirmation as to their accuracy
Ready to Sell your Home?
If you like this property and are also considering selling your current home now, you may find out how. Request your home selling analysis report featuring Recently Sold, Market Analysis, Home Valuations, and Market Update.
Start Selling your Home

Listing Broker

Information source

Houston Association of REALTORS®
Source last updated Apr 15, 2026 at 01:08 PM
Listing last updated Apr 06, 2026 at 09:43 PM
View website →

Know the property tax history and market value

Cost/Sqft based on tax value

------------------------------
---------- ---------- ---------- ----------
---------- ---------- ---------- ----------
---------- ---------- ---------- ----------
---------- ---------- ---------- ----------
---------- ---------- ---------- ----------
---------- ---------- ---------- ----------

-------------

-------------
------------- -------------
------------- -------------
-------------------------- -------------
-------------------------- -------------
------------- -------------

-------------

-------------
------------- -------------
------------- -------------
------------- -------------
------------- -------------
------------- -------------

Estimate your mortgage payments

Create and estimate your monthly mortgage payment and property taxes based on past rates.

Estimated Monthly Payments

DOWN PAYMENT
Loan Term
$-----
$-----
Full Page
Presented by TimeValue Software ©2021
Principal & InterestTaxes30.4%69.6%
Listing TaxNumbers
Principal & Interest2,841
Taxes1,242
--------
-------- --------

Explore school information

Check out assigned and nearby schools along with their detailed ratings and essential information to help you make informed decisions.

Assigned schools

View nearby schools view nearby schools

Notice & Disclaimer
School information is computer generated and may not be accurate or current. Buyer must independently verify and confirm enrollment. Please contact the school district to determine the schools to which this property is zoned.
Copyright© 2026 , HOUSTON REALTORS® INFORMATION SERVICE, INC. All Rights Reserved. Data Not Verified/Guaranteed by MLS
Schedule a tour
Tomorrow
16
Apr
Fri
17
Apr
Sat
18
Apr
Sun
19
Apr
Other dates
Contact agent
Call

Schedule a Tour

Thu
16
Apr
Fri
17
Apr
Sat
18
Apr
Sun
19
Apr
Mon
20
Apr
Tue
21
Apr
Wed
22
Apr
Thu
23
Apr
Fri
24
Apr
Sat
25
Apr