loading

29023 Grazing Plains Ln

Hockley, TX 77447
Get Directions →
Sold
Sold
$250,001 - $285,000
Sold on September 22, 2025
4 Bedroom(s)
2 Full & 1 Half Bath(s)
2,263 Sqft
Single-Family

Sold Transaction

Cesar Espinoza represented the buyer on this sold transaction on 09/22/2025

Get full access to Premium Content

Premium Content such as Sold Prices, Property History Reports and Saved Searches.

Sign in to view Premium Content

Description

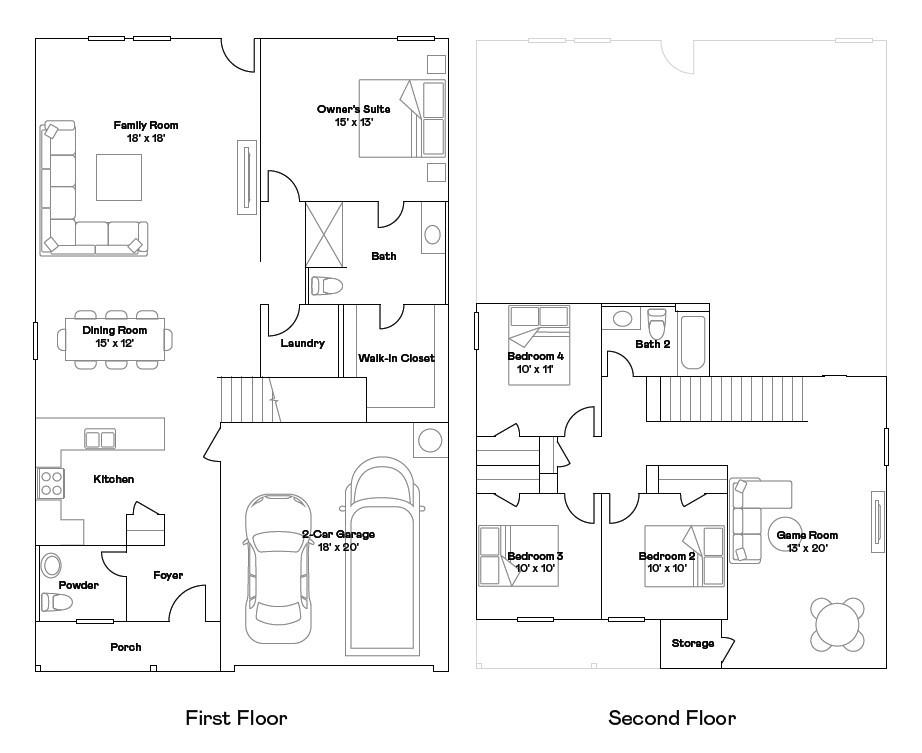
NEW! Lennar Core Watermill Collection "Sherman" Plan with Elevation "M4" in The Grand Prairie! This two-story home has a comfortable layout for those who need privacy. The front door leads into an open concept living area with a kitchen, family room and dining room. Tucked into the back corner is the owner’s suite, which features a private bathroom and walk-in closet. Upstairs is a versatile game round surrounded by three bedrooms that share a bathroom in the hall. *HOME ESTIMATED TO BE COMPLETED SEPTEMBER 2025*

MLS#
48010137
List Price
$346,990 ($153/Sqft.)
Sold Price Range
$250,001 - $285,000
Listing Status
Sold
Address
29023 Grazing Plains Ln
City
Hockley
State
TX
Zip Code
77447
County
Harris County
Subdivision
The Grand Prairie
Legal Description
SEC 0007 BLK 003 LOT 006
Property Type
Single-Family
Bedroom
4 Bedroom(s)
Bath
2 Full & 1 Half Bath(s)
Stories
2
Architecture Style
Traditional
Year Built
2025 / Builder
Building Size
2,263 Sqft/Builder
Maintenance Fee
$1,200 / Annually
Market Area

Rooms

Family Room
18 x 18, 1st
Dining
15 x 12, 1st
Kitchen
1st
Primary Bedroom
15 x 13, 1st
Bedroom
10 x 10, 2nd
Bedroom
10 x 10, 2nd
Bedroom
10 x 11, 2nd
Game Room
13 x 20, 2nd

Exterior

Roof
Composition
Foundation
Slab
Private Pool
No
Exterior Type
Brick, Cement Board
Lot Description
Subdivision Lot
Water Sewer
Water District

Extra details you may need to know

Dwelling Type
Free Standing
HOA Mandatory
Yes
List Type
Exclusive Right to Sell/Lease

Financial information

Other Fees
No
Maintenance Fee
Mandatory / $1200 / Annually
Tax Rate
2.83

Interior

Bedroom Description
Primary Bed - 1st Floor
Room Description
Family Room, Gameroom Up, Kitchen/Dining Combo, Utility Room in House
Cooling
Central Electric
Heating
Central Gas
Compactor
No
Dishwasher
Yes
Disposal
Yes
Ice Maker
No
Microwave
Yes

Lot Information

Lot Size
0 Sqft. /Appraisal District
loading
Disclaimer: Lot configuration and dimensions are estimates, not based on personal knowledge and come from a third party (Digital Map Products); therefore, you should not rely on the estimates and perform independent confirmation as to their accuracy
Ready to Sell your Home?
If you like this property and are also considering selling your current home now, you may find out how. Request your home selling analysis report featuring Recently Sold, Market Analysis, Home Valuations, and Market Update.
Start Selling your Home

Information source

Houston Association of REALTORS®
Source last updated Apr 24, 2026 at 05:57 PM
Listing last updated Sep 23, 2025 at 10:57 AM
View website →

Know the property tax history and market value

Cost/Sqft based on tax value

------------------------------
---------- ---------- ---------- ----------
---------- ---------- ---------- ----------
---------- ---------- ---------- ----------
---------- ---------- ---------- ----------
---------- ---------- ---------- ----------
---------- ---------- ---------- ----------

-------------

-------------
------------- -------------
------------- -------------
-------------------------- -------------
-------------------------- -------------
------------- -------------

-------------

-------------
------------- -------------
------------- -------------
------------- -------------
------------- -------------
------------- -------------

Estimate your mortgage payments

Create and estimate your monthly mortgage payment and property taxes based on past rates.

Estimated Monthly Payments

DOWN PAYMENT
Loan Term
$-----
$-----
Full Page
Presented by TimeValue Software ©2021
Principal & InterestTaxes30.4%69.6%
Listing TaxNumbers
Principal & Interest2,841
Taxes1,242
--------
-------- --------

Explore school information

Check out assigned and nearby schools along with their detailed ratings and essential information to help you make informed decisions.

Assigned schools

View nearby schools view nearby schools

Notice & Disclaimer
School information is computer generated and may not be accurate or current. Buyer must independently verify and confirm enrollment. Please contact the school district to determine the schools to which this property is zoned.
Copyright© 2026 , HOUSTON REALTORS® INFORMATION SERVICE, INC. All Rights Reserved. Data Not Verified/Guaranteed by MLS
Contact agent
Call Callback request