loading

148 A Rogers Rd

New Waverly, TX 77358
Get Directions →
Just listedJust listed
3 Bedroom(s)
2 Full Bath(s)
1,200 Sqft
12.44 Lot Acres
Single-Family

Audio narrative

Get full access to Premium Content

Premium Content such as Sold Prices, Property History Reports and Saved Searches.

Sign in to view Premium Content

Description

Mobile home situated on 12+ well-maintained acres offering endless possibilities for residential, agricultural, or business use. Conveniently located just minutes from I-45, this property provides a peaceful country setting with easy access to nearby amenities. The land features a spacious yard with plenty of room for expansion, gardening, or livestock—animals and RVs are welcome. Ideal for those seeking flexibility, the property allows for a variety of uses, including farming or future development. A fixer-upper home sits at the front of the property and could be renovated or removed to make way for new construction. Whether you're looking to settle in, invest, or build, this versatile property presents a unique opportunity with room to grow.

MLS#
4106217
List Price
$460,000 ($383/Sqft.)
Listing Status
For Sale
Address
148 A Rogers Rd
City
New Waverly
State
TX
Zip Code
77358
County
Walker County
Subdivision
Jmdb La Garza Grant Abs 22
Legal Description
GARZA J M (A-22), TRACT 63, ACRES 9.442
Property Type
Single-Family
Bedroom
3 Bedroom(s)
Bath
2 Full Bath(s)
Stories
1
Building Size
1,200 Sqft/Builder
Architecture Style
Traditional
Year Built
2019 /Builder
Lot Size
12.44 Lot Acres/Unknown
LP / Acre
$36,977 / Acre
Market Area

Rooms

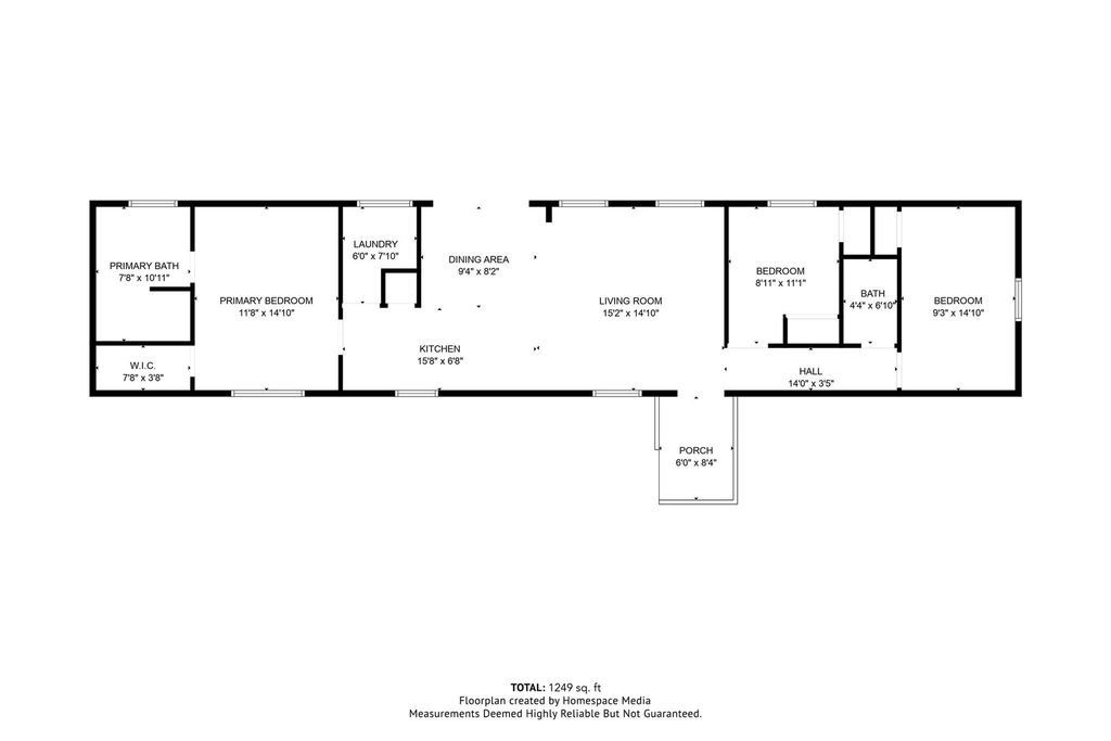
Living
15 x 14, 1st
Primary Bedroom
14 x 11, 1st
Bedroom
14 x 9, 1st
Bedroom
11 x 9, 1st

Exterior

Roof
Composition
Foundation
Pier & Beam
Private Pool
No
Exterior Type
Vinyl
Lot Description
Cleared
Water Sewer
Aerobic, Septic Tank, Well
Front Door Face
East
Area Pool
No

Extra details you may need to know

Dwelling Type
Manufactured
HOA Mandatory
No
List Type
Exclusive Right to Sell/Lease

Financial information

Financing Considered
Cash Sale, Conventional, FHA, VA
Other Fees
No
Maintenance Fee
No
Taxes w/o Exemp
$4,489/2024
Tax Rate
1.5931

Interior

Floors
Carpet, Laminate
Bathroom Description
Full Secondary Bathroom Down, Primary Bath: Double Sinks, Primary Bath: Separate Shower, Secondary Bath(s): Tub/Shower Combo
Bedroom Description
All Bedrooms Down,En-Suite Bath,Primary Bed - 1st Floor,Walk-In Closet
Kitchen Description
Breakfast Bar,Kitchen open to Family Room
Room Description
1 Living Area, Family Room, Kitchen/Dining Combo, Living Area - 1st Floor, Living/Dining Combo, Utility Room in House
Cooling
Central Electric
Heating
Central Electric
Connections
Electric Dryer Connections, Washer Connections
Dishwasher
Yes
Disposal
No
Oven
Electric Oven, Freestanding Oven
Range
Electric Range, Freestanding Range
Energy Feature
Ceiling Fans, Digital Program Thermostat, Energy Star Appliances
Interior
Fire/Smoke Alarm, Window Coverings

Lot Information

Lot Size
12.44 Lot Acres /Unknown
loading
Disclaimer: Lot configuration and dimensions are estimates, not based on personal knowledge and come from a third party (Digital Map Products); therefore, you should not rely on the estimates and perform independent confirmation as to their accuracy
Ready to Sell your Home?
If you like this property and are also considering selling your current home now, you may find out how. Request your home selling analysis report featuring Recently Sold, Market Analysis, Home Valuations, and Market Update.
Start Selling your Home

Listing Broker

Information source

Houston Association of REALTORS®
Source last updated Apr 16, 2026 at 11:46 PM
Listing last updated Apr 15, 2026 at 08:56 AM
View website →

Estimate your mortgage payments

Create and estimate your monthly mortgage payment and property taxes based on past rates.

Estimated Monthly Payments

DOWN PAYMENT
Loan Term
$-----
$-----
Full Page
Presented by TimeValue Software ©2021
Principal & InterestTaxes30.4%69.6%
Listing TaxNumbers
Principal & Interest2,841
Taxes1,242
--------
-------- --------

Explore school information

Check out assigned and nearby schools along with their detailed ratings and essential information to help you make informed decisions.

Assigned schools

View nearby schools view nearby schools

Notice & Disclaimer
School information is computer generated and may not be accurate or current. Buyer must independently verify and confirm enrollment. Please contact the school district to determine the schools to which this property is zoned.
Copyright© 2026 , HOUSTON REALTORS® INFORMATION SERVICE, INC. All Rights Reserved. Data Not Verified/Guaranteed by MLS
Schedule a tour
Tomorrow
18
Apr
Sun
19
Apr
Mon
20
Apr
Tue
21
Apr
Other dates
Contact agent
Call

Schedule a Tour

Sat
18
Apr
Sun
19
Apr
Mon
20
Apr
Tue
21
Apr
Wed
22
Apr
Thu
23
Apr
Fri
24
Apr
Sat
25
Apr
Sun
26
Apr
Mon
27
Apr