loading

1 Pleasant Vly

Sanger, TX 76266
Get Directions →
Just listedJust listed
4 Bedroom(s)
2 Full & 1 Half Bath(s)
2,103 Sqft
0.15 Lot Acres
Residential - Single Family

Audio narrative

Get full access to Premium Content

Premium Content such as Sold Prices, Property History Reports and Saved Searches.

Sign in to view Premium Content

Description

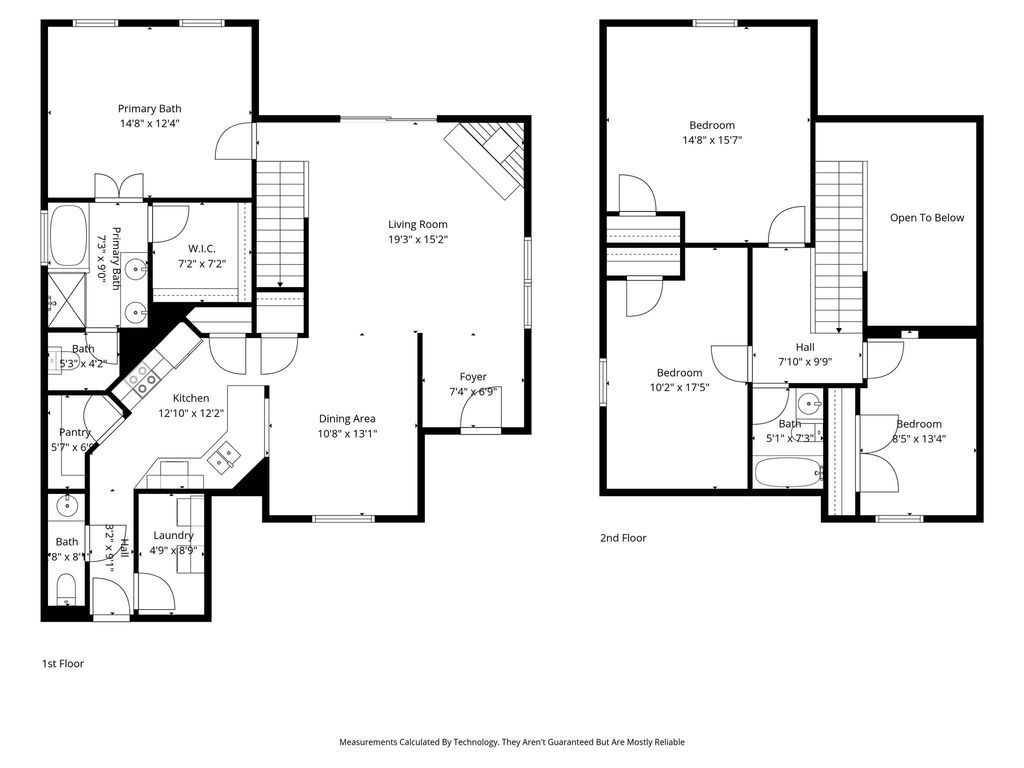
Charming 2 story home on corner lot backs to greenspace. Downstairs includes a large living area with vaulted ceiling and brick fireplace. Kitchen has two pantries. Convenient half bath for guests near garage and laundry room. Oversized primary bedroom has large, walk in closet two sinks, separate tub and shower. Upstairs has 3 large bedrooms and a guest bath. Largest bedroom could easily serve as an upstairs living area. Backyard boasts of a partially covered deck, at the back door. Extended deck along the back of the house with a stunning view of the greenspace behind the home. Absolutely lovely. The side yard of the home is at a lower level and is the perfect place for kids to play and dogs to run. The oversized front yard is partially maintained by the HOA. This home has charming curb appeal, great storage, and great sized bedrooms.

MLS#
NTREIS-21217810
List Price
$345,000 ($164/Sqft.)
Listing Status
For Sale
Address
1 Pleasant Vly
City
Sanger
State
TX
Zip Code
76266
County
Denton County
Subdivision
Sable Creek Add Ph II
Legal Description
SABLE CREEK ADDN PH II BLK A LOT 1
Property Type
Residential - Single Family
Bedroom
4 Bedroom(s)
Bath
2 Full & 1 Half Bath(s)
Garages
2 / Attached
Stories
2
Building Size
2,103 Sqft/Appraisal District
Architecture Style
Traditional
Year Built
2008 /Appraisal District
Lot Size
0.15 Lot Acres/PUBREC
Maintenance Fee
$150 / Annually

Rooms

Living
19 x 15, 1st
Dining
10 x 13, 1st
Kitchen
12 x 12, 1st
Primary Bedroom
14 x 12, 1st
Bedroom
8 x 13, 2nd
Bedroom
10 x 17, 2nd
Bedroom
14 x 15, 2nd
Bath
5 x 7, 2nd
Half Bath
2 x 8, 1st

Interior

Number Of Living Area
1
Fireplace
1/Brick,Gas,Gas Starter,Living Room
Floors
Carpet, Tile
Cooling
Central Air, Zoned
Heating
Central, Fireplace(s), Natural Gas, Zoned
Window
Window Coverings
Appliances
Dishwasher, Disposal, Electric Cooktop, Electric Oven, Gas Water Heater, Microwave
Security System
Burglar,Carbon Monoxide Detector(s),Security System,Smoke Detector(s)
Interior
Cable TV Available, High Speed Internet Available

Exterior

Roof
Composition
Foundation
Slab
Private Pool
No
Exterior Type
Brick, Wood
Lot Description
Corner Lot, Greenbelt, Subdivision
Garage Size
21 X 20
Parking
Epoxy Flooring, Garage, Garage Door Opener, Garage Faces Side, On Site, On Street, Side By Side
Parking Space
Garage 2 / Carport 0 / Total Covered 2
Fencing
Back Yard,Fenced,Wood
Porch
Covered,Deck
Easements
Utilities
Utility
Asphalt,Cable Available,City Sewer,City Water,Co-op Electric,Individual Gas Meter,Individual Water Meter,Natural Gas Available,Underground Utilities
Exterior
Covered Deck, Rain Gutters, Lighting

Extra details you may need to know

Dwelling Type
Single Detached

Financial information

Maintenance Fee
$150/Annually
Maint Fee Includes
Management Fees

Lot Information

Lot Size
0.15 Lot Acres /PUBREC
loading
Disclaimer: Lot configuration and dimensions are estimates, not based on personal knowledge and come from a third party (Digital Map Products); therefore, you should not rely on the estimates and perform independent confirmation as to their accuracy
Ready to Sell your Home?
If you like this property and are also considering selling your current home now, you may find out how. Request your home selling analysis report featuring Recently Sold, Market Analysis, Home Valuations, and Market Update.
Start Selling your Home

Information source

North Texas Real Estate Information Systems, Inc.
Source last updated Apr 17, 2026 at 02:16 AM
Listing last updated Apr 15, 2026 at 06:18 AM
View website →

Know the property tax history and market value

Cost/Sqft based on tax value

------------------------------
---------- ---------- ---------- ----------
---------- ---------- ---------- ----------
---------- ---------- ---------- ----------
---------- ---------- ---------- ----------
---------- ---------- ---------- ----------
---------- ---------- ---------- ----------

-------------

-------------
------------- -------------
------------- -------------
-------------------------- -------------
-------------------------- -------------
------------- -------------

-------------

-------------
------------- -------------
------------- -------------
------------- -------------
------------- -------------
------------- -------------

Estimate your mortgage payments

Create and estimate your monthly mortgage payment and property taxes based on past rates.

Estimated Monthly Payments

DOWN PAYMENT
Loan Term
$-----
$-----
Full Page
Presented by TimeValue Software ©2021
Principal & InterestTaxes30.4%69.6%
Listing TaxNumbers
Principal & Interest2,841
Taxes1,242
--------
-------- --------

Explore school information

Check out assigned and nearby schools along with their detailed ratings and essential information to help you make informed decisions.

Assigned schools

View nearby schools view nearby schools

Notice & Disclaimer
School information is computer generated and may not be accurate or current. Buyer must independently verify and confirm enrollment. Please contact the school district to determine the schools to which this property is zoned.
Copyright© 2026 , HOUSTON REALTORS® INFORMATION SERVICE, INC. All Rights Reserved. Data Not Verified/Guaranteed by MLS
Schedule a tour
Tomorrow
18
Apr
Sun
19
Apr
Mon
20
Apr
Tue
21
Apr
Other dates
Contact agent
Call

Schedule a Tour

Sat
18
Apr
Sun
19
Apr
Mon
20
Apr
Tue
21
Apr
Wed
22
Apr
Thu
23
Apr
Fri
24
Apr
Sat
25
Apr
Sun
26
Apr
Mon
27
Apr