loading

3848 Willie Mays Ln

Round Rock, TX 78665
Get Directions →
Just listedJust listed
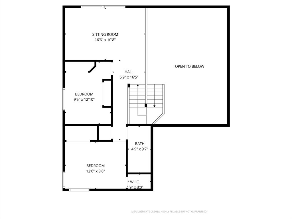
3 Bedroom(s)
2 Full & 1 Half Bath(s)
2,133 Sqft
6,103 Lot Sqft
Residential Single Family

Audio narrative

Get full access to Premium Content

Premium Content such as Sold Prices, Property History Reports and Saved Searches.

Sign in to view Premium Content

Description

Welcome to this stunning 4-sided limestone, two-story home nestled on a .15-acre lot that backs to a serene 10-acre greenbelt, offering a rare blend of privacy and natural beauty right in the heart of Round Rock. With no rear neighbors, your backyard becomes a peaceful retreat—perfect for morning coffee, evening unwinding, or simply soaking in the open views. Thoughtfully maintained and move-in ready, this home offers a fantastic opportunity to personalize and update to your own style while enjoying everything it already has to offer. Location truly shines here. Just a short stroll away, you’ll find the Dell Diamond, where you can catch a game or enjoy the magic of seasonal fireworks... or watch the fireworks right from your own backyard. It’s like having a front-row seat without ever leaving home. Outdoor enthusiasts will love the proximity to Old Settlers Park, a sprawling destination packed with amenities including walking and biking trails, sports fields, fishing areas, playgrounds, picnic pavilions, and even a disc golf course and a water park. Whether you're looking for recreation or relaxation, the options are endless just minutes from your doorstep. And, if 1 waterpark isn't enough, Kalihari is right across the street, too. This home offers not just a place to live, but a lifestyle—where convenience, community, and a touch of Texas charm all come together beautifully.

MLS#
ABORTX-6853841
List Price
$332,000 ($156/Sqft.)
Listing Status
For Sale
Address
3848 Willie Mays Ln
City
Round Rock
State
TX
Zip Code
78665
County
Williamson County
Subdivision
Ryans Crossing Sec 04 Amd
Legal Description
S7958 - RYANS CROSSING SEC 4 AMENDED, BLOCK I, LOT 67
Property Type
Residential Single Family
Bedroom
3 Bedroom(s)
Bath
2 Full & 1 Half Bath(s)
Garages
2 / Attached
Stories
2
Building Size
2,133 Sqft/Public Records
Year Built
2002 /Public Records
Lot Size
6,103 Sqft/Appraisal District
Maintenance Fee
$120 / Quarterly

Interior

Number Of Living Area
2
Number Of Dining Area
2
Fireplace
1/Gas Log,Living Room
Floors
Carpet, Tile
Cooling
Central Air
Heating
Central
Window
Screens
Appliances
Dishwasher, Disposal, Dryer, Washer
Security System
Prewired,Security System Owned
Interior
Cathedral Ceiling(s), Ceiling-Vaulted, Multiple Dining Areas, Multiple Living Areas, Primary Bedroom on Main, Wired for Sound

Exterior

Roof
Composition
Foundation
Slab
Private Pool
No
Exterior Type
Masonry
Lot Description
Trees-Medium (20 Ft - 40 Ft), Trees-Small (Under 20 Ft)
Parking
Attached, Door-Single, Garage Door Opener, Garage Faces Front
Parking Space
Garage 2 / Parking 2
Utility
Electricity Available,Natural Gas Available,Phone Connected,See Remarks
Front Door Face
East
Area Pool
Yes
Exterior
See Remarks, Garden

Extra details you may need to know

Dwelling Type
1st Floor Entry
Community Features
Pool

Financial information

Maintenance Fee
$120.00/Quarterly

Rooms

Lot Dimention
50 x 122

Lot Information

Lot Size
6,103 Sqft. /Appraisal District
loading
Disclaimer: Lot configuration and dimensions are estimates, not based on personal knowledge and come from a third party (Digital Map Products); therefore, you should not rely on the estimates and perform independent confirmation as to their accuracy
Ready to Sell your Home?
If you like this property and are also considering selling your current home now, you may find out how. Request your home selling analysis report featuring Recently Sold, Market Analysis, Home Valuations, and Market Update.
Start Selling your Home

Listing Broker

Information source

unlock MLS
Source last updated Apr 20, 2026 at 08:37 PM
Listing last updated Apr 20, 2026 at 04:38 PM
View website →

Know the property tax history and market value

Cost/Sqft based on tax value

------------------------------
---------- ---------- ---------- ----------
---------- ---------- ---------- ----------
---------- ---------- ---------- ----------
---------- ---------- ---------- ----------
---------- ---------- ---------- ----------
---------- ---------- ---------- ----------

-------------

-------------
------------- -------------
------------- -------------
-------------------------- -------------
-------------------------- -------------
------------- -------------

-------------

-------------
------------- -------------
------------- -------------
------------- -------------
------------- -------------
------------- -------------

Estimate your mortgage payments

Create and estimate your monthly mortgage payment and property taxes based on past rates.

Estimated Monthly Payments

DOWN PAYMENT
Loan Term
$-----
$-----
Full Page
Presented by TimeValue Software ©2021
Principal & InterestTaxes30.4%69.6%
Listing TaxNumbers
Principal & Interest2,841
Taxes1,242
--------
-------- --------

Explore school information

Check out assigned and nearby schools along with their detailed ratings and essential information to help you make informed decisions.

Assigned schools

View nearby schools view nearby schools

Notice & Disclaimer
School information is computer generated and may not be accurate or current. Buyer must independently verify and confirm enrollment. Please contact the school district to determine the schools to which this property is zoned.
Copyright© 2026 , HOUSTON REALTORS® INFORMATION SERVICE, INC. All Rights Reserved. Data Not Verified/Guaranteed by MLS
Contact agent
Call