loading

16933 W Hammon

Montgomery, TX 77316
Get Directions →
For Sale
Under Contract – P
4 Bedroom(s)
2 Full Bath(s)
1,120 Sqft
6,730 Lot Sqft
Single-Family

Audio narrative

Get full access to Premium Content

Premium Content such as Sold Prices, Property History Reports and Saved Searches.

Sign in to view Premium Content

Description

Your next 4-bedroom, 2-bathroom property. A prime opportunity to renovate in the Lake Conroe Village area. The home serves as a blank canvas, featuring a spacious layout with some modern updates already in progress, including contemporary grey laminate flooring and striking black tile work in the primary bathroom's walk-in shower. The kitchen comes equipped with a stainless steel electric range, a matching over-the-range microwave, and a dishwasher, providing a solid foundation for your culinary redesign. Located within the sought-after Montgomery ISD and just minutes from the lake.

MLS#
38898658
List Price
$89,000 ($79/Sqft.)
Listing Status
Under Contract – P
Address
16933 W Hammon
City
Montgomery
State
TX
Zip Code
77316
County
Montgomery County
Legal Description
S660300 - LAKE CONROE VILLAGE, BLOCK 14, LOT 13,14 IMP ONLY,
Property Type
Single-Family
Bedroom
4 Bedroom(s)
Bath
2 Full Bath(s)
Stories
1
Building Size
1,120 Sqft/Appraisal District
Architecture Style
Traditional
Year Built
1999 /Appraisal District
Lot Size
6,730 Sqft/Appraisal District
Maintenance Fee
$35 / Monthly
Market Area

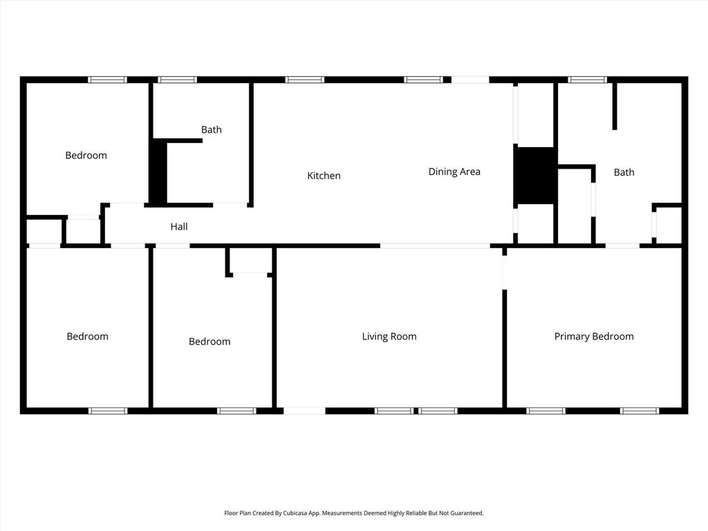
Rooms

Living
1st
Kitchen
1st
Primary Bedroom
10 x 10, 1st
Bedroom
10 x 10, 1st
Bedroom
10 x 10, 1st
Bedroom
10 x 10, 1st

Exterior

Roof
Composition
Foundation
Pier & Beam
Private Pool
No
Exterior Type
Vinyl
Lot Description
Subdivision Lot
Water Sewer
Public Sewer, Public Water

Extra details you may need to know

Dwelling Type
Manufactured
HOA Mandatory
Yes
List Type
Exclusive Right to Sell/Lease

Financial information

Financing Considered
Cash Sale, Conventional, FHA, USDA Loan, VA
Other Fees
Yes / 200 / Transfer Fee
Maintenance Fee
Mandatory / $35 / Monthly
Taxes w/o Exemp
$1,253/2025
Tax Rate
1.6155

Interior

Floors
Carpet, Laminate, Vinyl
Bathroom Description
Primary Bath: Tub/Shower Combo
Kitchen Description
Island w/o Cooktop,Pots/Pans Drawers
Room Description
1 Living Area, Living Area - 1st Floor, Living/Dining Combo
Cooling
Central Electric
Heating
Central Gas
Range
Electric Range, Freestanding Range
Energy Feature
Ceiling Fans

Lot Information

Lot Size
6,730 Sqft. /Appraisal District
loading
Disclaimer: Lot configuration and dimensions are estimates, not based on personal knowledge and come from a third party (Digital Map Products); therefore, you should not rely on the estimates and perform independent confirmation as to their accuracy
Ready to Sell your Home?
If you like this property and are also considering selling your current home now, you may find out how. Request your home selling analysis report featuring Recently Sold, Market Analysis, Home Valuations, and Market Update.
Start Selling your Home

Listing Broker

Information source

Houston Association of REALTORS®
Source last updated Apr 15, 2026 at 01:47 PM
Listing last updated Apr 03, 2026 at 12:57 PM
View website →

Know the property tax history and market value

Cost/Sqft based on tax value

------------------------------
---------- ---------- ---------- ----------
---------- ---------- ---------- ----------
---------- ---------- ---------- ----------
---------- ---------- ---------- ----------
---------- ---------- ---------- ----------
---------- ---------- ---------- ----------

-------------

-------------
------------- -------------
------------- -------------
-------------------------- -------------
-------------------------- -------------
------------- -------------

-------------

-------------
------------- -------------
------------- -------------
------------- -------------
------------- -------------
------------- -------------

Estimate your mortgage payments

Create and estimate your monthly mortgage payment and property taxes based on past rates.

Estimated Monthly Payments

DOWN PAYMENT
Loan Term
$-----
$-----
Full Page
Presented by TimeValue Software ©2021
Principal & InterestTaxes30.4%69.6%
Listing TaxNumbers
Principal & Interest2,841
Taxes1,242
--------
-------- --------

Explore school information

Check out assigned and nearby schools along with their detailed ratings and essential information to help you make informed decisions.

Assigned schools

View nearby schools view nearby schools

Notice & Disclaimer
School information is computer generated and may not be accurate or current. Buyer must independently verify and confirm enrollment. Please contact the school district to determine the schools to which this property is zoned.
Copyright© 2026 , HOUSTON REALTORS® INFORMATION SERVICE, INC. All Rights Reserved. Data Not Verified/Guaranteed by MLS
Schedule a tour
Tomorrow
16
Apr
Fri
17
Apr
Sat
18
Apr
Sun
19
Apr
Other dates
Contact agent
Call

Schedule a Tour

Thu
16
Apr
Fri
17
Apr
Sat
18
Apr
Sun
19
Apr
Mon
20
Apr
Tue
21
Apr
Wed
22
Apr
Thu
23
Apr
Fri
24
Apr
Sat
25
Apr