loading

14810 Hemphill King

San Antonio, TX 78245
Get Directions →
Just listedJust listed
5 Bedroom(s)
2 Full & 1 Half Bath(s)
1,892 Sqft
Single-Family

Audio narrative

Get full access to Premium Content

Premium Content such as Sold Prices, Property History Reports and Saved Searches.

Sign in to view Premium Content

Description

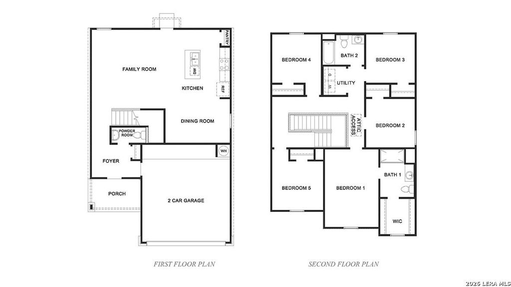
The Franklin plan is one of our two-story homes featured in Stonehill in San Antonio, TX. This new home layout offers 2 classic front exteriors, 5 bedrooms, 2.5 baths, 2 car-garage and 1891 square feet of comfortable living. Step inside The Franklin to find an elongated foyer opening to an open concept living room, kitchen, and dining area. The gourmet kitchen faces the living area so you don't miss a thing while cooking and includes quartz counter tops, stainless steel appliances and shaker style cabinetry. The main bedroom is located toward the front of the home on the second story and features an attractive attached bathroom with a walk-in shower, quartz countertops, a grand walk-in closet and plenty of storage space. The second story includes all secondary bedrooms, and two full bathrooms. You'll have carpeted floors in every bedroom and sheet vinyl flooring in your bathrooms and utility room. Additional features include sheet vinyl flooring in entry, living

MLS#
SA1959814
List Price
$273,295 ($144/Sqft.)
Listing Status
For Sale
Address
14810 Hemphill King
City
San Antonio
State
TX
Zip Code
78245
County
Bexar County
Subdivision
STONEHILL
Legal Description
BLOCK 94 LOT 11
Property Type
Single-Family
Bedroom
5 Bedroom(s)
Bath
2 Full & 1 Half Bath(s)
Garages
2 / Appraisal District
Stories
2
Building Size
1,892 Sqft/Builder
Year Built
2026 /Appraisal District
Maintenance Fee
$215 / Quarterly

Exterior

Roof
Composition
Foundation
Slab
Private Pool
No
Exterior Type
Brick, Cement Board, Other
Water Sewer
Other Water/Sewer
Road Surface
Curbs
Exterior
Covered Patio/Deck, Sprinkler System

Financial information

Financing Considered
Cash Sale, Conventional, FHA, Other, Texas Veterans Land Board, USDA Loan, VA
Other Fees
Yes / 345 / 0.000
Maintenance Fee
Mandatory / $215 / Quarterly
Taxes w/o Exemp
$2/2025

Extra details you may need to know

HOA Mandatory
Yes
List Type
Exclusive Right to Sell/Lease

Interior

Floors
Carpet, Vinyl
Bathroom Description
Primary Bath: Shower Only, Vanity Area
Bedroom Description
En-Suite Bath,Walk-In Closet
Cooling
Other Cooling
Heating
Central Gas
Connections
Washer Connections
Washer/Dryer Conn
Yes
Compactor
No
Dishwasher
Yes
Disposal
Yes
Microwave
No
Energy Feature
Digital Program Thermostat, HVAC>13 SEER, Insulated/Low-E windows, Other Energy Features, Radiant Attic Barrier, Tankless/On-Demand H2O Heater
Interior
Fire/Smoke Alarm, Island Kitchen
Ready to Sell your Home?
If you like this property and are also considering selling your current home now, you may find out how. Request your home selling analysis report featuring Recently Sold, Market Analysis, Home Valuations, and Market Update.
Start Selling your Home

Listing Broker

Information source

LERA MLS
Source last updated Apr 21, 2026 at 12:06 PM
Listing last updated Apr 21, 2026 at 10:17 AM
View website →

Estimate your mortgage payments

Create and estimate your monthly mortgage payment and property taxes based on past rates.

Estimated Monthly Payments

DOWN PAYMENT
Loan Term
$-----
$-----
Full Page
Presented by TimeValue Software ©2021
Principal & InterestTaxes30.4%69.6%
Listing TaxNumbers
Principal & Interest2,841
Taxes1,242
--------
-------- --------

Explore school information

Check out assigned and nearby schools along with their detailed ratings and essential information to help you make informed decisions.

Assigned schools

View nearby schools view nearby schools

Notice & Disclaimer
School information is computer generated and may not be accurate or current. Buyer must independently verify and confirm enrollment. Please contact the school district to determine the schools to which this property is zoned.
Copyright© 2026 , HOUSTON REALTORS® INFORMATION SERVICE, INC. All Rights Reserved. Data Not Verified/Guaranteed by MLS
Contact agent
Call