Premium Content such as Sold Prices, Property History Reports and Saved Searches.
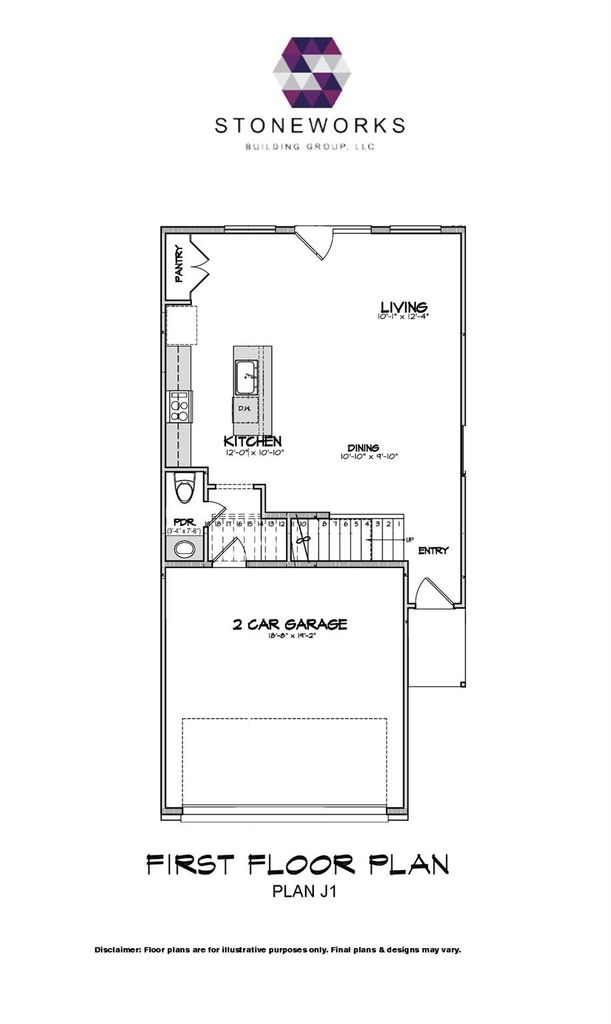
Discover 11327 Stonework Grove Lane, a beautifully crafted freestanding new home by the coveted Stoneworks Building Group, offering exceptional space, quality & superb quiet location within a private, gated community. This 3-bedroom, 2.5-bath home features ideal first-level living with an expansive chef’s kitchen complete with a generous eat-in peninsula, soft-close cabinetry throughout & a large walk-in pantry, all overlooking a window-lined living room & adjoining dining area. Upstairs, all bedrooms are generously sized, including a spacious primary suite with a huge walk-in closet and a beautifully finished bath with an elongated freestanding soaking tub, separate shower, dual vanities & private water closet. Additional highlights include a private driveway, massive utility room & a large backyard ideal for outdoor living. The home will be fully equipped with all appliances & blinds, including a refrigerator, washer & dryer. Home is under construction to be completed May 2026.
| ---------- | ---------- | ---------- | ---------- |
|---|---|---|---|
| ---------- | ---------- | ---------- | ---------- |
| ---------- | ---------- | ---------- | ---------- |
| ---------- | ---------- | ---------- | ---------- |
| ---------- | ---------- | ---------- | ---------- |
| ---------- | ---------- | ---------- | ---------- |
| ------------- | ------------- |
| ------------- | ------------- |
| -------------------------- | ------------- |
| -------------------------- | ------------- |
| ------------- | ------------- |
| ------------- | ------------- |
| ------------- | ------------- |
| ------------- | ------------- |
| ------------- | ------------- |
| ------------- | ------------- |
Check out assigned and nearby schools along with their detailed ratings and essential information to help you make informed decisions.