loading

30400 Highland Blvd

Magnolia, TX 77354
Get Directions →
For Sale
Under Contract – P
4 Bedroom(s)
2 Full & 1 Half Bath(s)
4,890 Sqft
2.00 Lot Acres
Single-Family

Audio narrative

Get full access to Premium Content

Premium Content such as Sold Prices, Property History Reports and Saved Searches.

Sign in to view Premium Content

Description

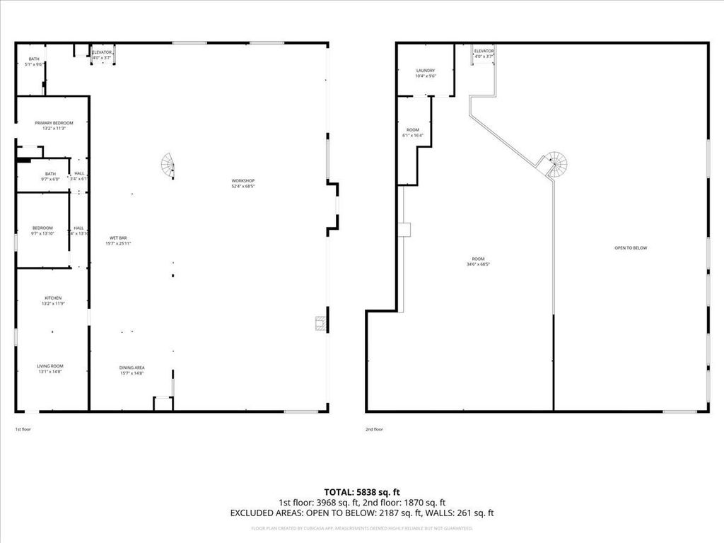
Discover an exceptional modern estate set on 2 gated, fully fenced acres with a tranquil front-yard pond and long private driveway. The stunning 4,890 sq ft main home features 4 spacious bedrooms, 2.5 baths, open living areas, and contemporary finishes throughout. Behind the residence sits an incredible 5,838 sq ft ADU with its own separate driveway, perfect for Airbnb, multigenerational living, or rental income. The first floor offers 3,968 sq ft with 2 bedrooms and 1 full bath, while the 1,870 sq ft second floor provides a massive open area ideal for a studio, workspace, or future build-out. This rare property delivers luxury, privacy, and versatility—plus convenient future access to The Woodlands with Woodtrace Blvd extending to connect Dobbin Huffsmith Rd and FM 2978.

MLS#
26448165
List Price
$1,625,000
($332/Sqft.)
Listing Status
Under Contract – P
Address
30400 Highland Blvd
City
Magnolia
State
TX
Zip Code
77354
County
Montgomery County
Legal Description
S953300 - WILDWOOD ACRES 432, LOT 25 W/2, ACRES 2
Property Type
Single-Family
Bedroom
4 Bedroom(s)
Bath
2 Full & 1 Half Bath(s)
Garages
3 / Detached ,Oversized
Stories
2
Building Size
4,890 Sqft/Appraisal District
Architecture Style
Barndominium,Contemporary/Modern
Year Built
2014 /Appraisal District
Lot Size
2.00 Lot Acres/Appraisal District
LP / Acre
$812,500 / Acre
Key Map©
214Q
Market Area

Rooms

Living
19'8"x16'10", 1st
Dining
29'3"x15'2", 1st
Kitchen
16'6"x25'3", 1st
Primary Bedroom
24'9"x19'9", 2nd
Bedroom
20'x13'5", 2nd
Bedroom
15'2"x15'4", 2nd
Bedroom
13'10"x17'2", 2nd

Exterior

Roof
Composition
Foundation
Slab
Private Pool
No
Exterior Type
Stucco
Lot Description
Subdivision Lot, Water View
Water Amenity
Pond
Garage Carport
Additional Parking,Driveway Gate
Controlled Access
Automatic Gate, Driveway Gate
Water Sewer
Septic Tank, Well
Front Door Face
West

Extra details you may need to know

Dwelling Type
Free Standing
HOA Mandatory
No
List Type
Exclusive Right to Sell/Lease

Interior

Fireplace
1/Electric Fireplace
Countertop
Quartz
Cooling
Central Electric
Heating
Central Electric
Connections
Electric Dryer Connections, Washer Connections
Compactor
No
Dishwasher
Yes
Disposal
Yes
Microwave
Yes
Oven
Electric Oven, Gas Oven
Range
Gas Range
Interior
Balcony, Elevator, Wet Bar

Financial information

Other Fees
No
Maintenance Fee
No
Taxes w/o Exemp
$19,282/2024
Tax Rate
1.5831

Lot Information

Lot Size
2.00 Lot Acres /Appraisal District
loading
Disclaimer: Lot configuration and dimensions are estimates, not based on personal knowledge and come from a third party (Digital Map Products); therefore, you should not rely on the estimates and perform independent confirmation as to their accuracy
Ready to Sell your Home?
If you like this property and are also considering selling your current home now, you may find out how. Request your home selling analysis report featuring Recently Sold, Market Analysis, Home Valuations, and Market Update.
Start Selling your Home

Listing Broker

Information source

Houston Association of REALTORS®
Source last updated Apr 25, 2026 at 05:57 AM
Listing last updated Apr 13, 2026 at 04:49 AM
View website →

Know the property tax history and market value

Cost/Sqft based on tax value

------------------------------
---------- ---------- ---------- ----------
---------- ---------- ---------- ----------
---------- ---------- ---------- ----------
---------- ---------- ---------- ----------
---------- ---------- ---------- ----------
---------- ---------- ---------- ----------

-------------

-------------
------------- -------------
------------- -------------
-------------------------- -------------
-------------------------- -------------
------------- -------------

-------------

-------------
------------- -------------
------------- -------------
------------- -------------
------------- -------------
------------- -------------

Estimate your mortgage payments

Create and estimate your monthly mortgage payment and property taxes based on past rates.

Estimated Monthly Payments

DOWN PAYMENT
Loan Term
$-----
$-----
Full Page
Presented by TimeValue Software ©2021
Principal & InterestTaxes30.4%69.6%
Listing TaxNumbers
Principal & Interest2,841
Taxes1,242
--------
-------- --------

Explore school information

Check out assigned and nearby schools along with their detailed ratings and essential information to help you make informed decisions.

Assigned schools

View nearby schools view nearby schools

Notice & Disclaimer
School information is computer generated and may not be accurate or current. Buyer must independently verify and confirm enrollment. Please contact the school district to determine the schools to which this property is zoned.
Copyright© 2026 , HOUSTON REALTORS® INFORMATION SERVICE, INC. All Rights Reserved. Data Not Verified/Guaranteed by MLS
Schedule a tour
Tomorrow
26
Apr
Mon
27
Apr
Tue
28
Apr
Wed
29
Apr
Other dates
Contact agent
Call

Schedule a Tour

Sun
26
Apr
Mon
27
Apr
Tue
28
Apr
Wed
29
Apr
Thu
30
Apr
Fri
01
May
Sat
02
May
Sun
03
May
Mon
04
May
Tue
05
May