For Rent
Under Contract - OP
4
Bedroom(s)
3 Full Bath(s)
1,700 Sqft
158 (m²)
8,189 Lot Sqft
761 Lot (m²)
Residential Lease - Duplex
Audio narrative 
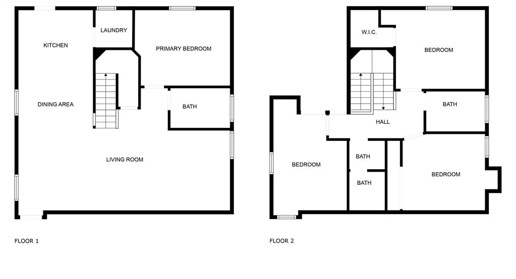
507 W North Loop Blvd A is listed for rent at $ 3,550. The Residential Lease - Duplex property has 4 bedrooms, 3 Full Bathrooms, 1700 square feet and was built in 2012. The lot size is 8189.28 Square feet. ##BR##Pre leasing for August 1st: This spacious and well-maintained two-story duplex offers an ideal setup for students looking to live near The University of Texas or downtown Austin. With four bedrooms and three full bathrooms, there’s plenty of room to study, relax, and share with roommates.
The entry opens to a connected dining and kitchen area, creating a comfortable and functional living space. The kitchen features stainless steel appliances, a bar counter perfect for casual meals or hanging out, and comes fully equipped with a refrigerator.
Downstairs includes stained concrete floors, a private bedroom, and a full bathroom—great for a study space or guest room. Upstairs, you’ll find three more bedrooms, two full bathrooms, and rich hardwood floors throughout. Each bedroom includes generous closet space.
Additional highlights include a fully fenced backyard with mature trees for shade, plus a washer and dryer included with the home. One covered and assigned parking space is also included.
This duplex offers a rare combination of space, privacy, and location, just minutes from campus and all that central Austin has to offer.
Be notified of upcoming
Open Houses for this property
Description
This reflects a seller’s willingness to consider a concession/contribution toward a buyer’s expenses but is not a guarantee. Buyer and seller may negotiate a contribution, if any, in relation to the purchase contract. Any contribution from the seller may be used by the buyer at their discretion for items like closing costs, repair expenses, interest rate buy-down, etc.
This reflects a seller’s willingness to consider a concession/contribution toward a buyer’s expenses but is not a guarantee. Buyer and seller may negotiate a contribution, if any, in relation to the purchase contract. Any contribution from the seller may be used by the buyer at their discretion for items like closing costs, repair expenses, interest rate buy-down, etc.
Pre leasing for August 1st: This spacious and well-maintained two-story duplex offers an ideal setup for students looking to live near The University of Texas or downtown Austin. With four bedrooms and three full bathrooms, there’s plenty of room to study, relax, and share with roommates.
The entry opens to a connected dining and kitchen area, creating a comfortable and functional living space. The kitchen features stainless steel appliances, a bar counter perfect for casual meals or hanging out, and comes fully equipped with a refrigerator.
Downstairs includes stained concrete floors, a private bedroom, and a full bathroom—great for a study space or guest room. Upstairs, you'll find three more bedrooms, two full bathrooms, and rich hardwood floors throughout. Each bedroom includes generous closet space.
Additional highlights include a fully fenced backyard with mature trees for shade, plus a washer and dryer included with the home. One covered and assigned parking space is also included.
This duplex offers a rare combination of space, privacy, and location, just minutes from campus and all that central Austin has to offer.
LOT 2 * & E10FT OF LOT 1 KOENIG PLACE
Residential Lease - Duplex
1,700 Sqft158 (m²)./Public Records
8,189 Sqft761 (m²)./Appraisal District
Home interior
Cats OK,Dogs OK,Negotiable
Carpet, Concrete, Laminate
Ceiling Fan(s), Central Air
Dishwasher, Disposal, Dryer, Gas Range, Microwave, Refrigerator, Washer, Water Heater-Gas
Carbon Monoxide Detector(s),Smoke Detector(s)
Breakfast Bar, Ceiling Fan(s), Ceiling-High, Counter-Granite, Crown Molding, Electric Dryer Hookup, Gas Dryer Hookup, Interior Steps, Open Floorplan, Washer Hookup
Home exterior
Back Yard, Trees-Medium (20 Ft - 40 Ft), Trees-Sparse
Electric Separate,Gas Separate,Water Separate
Above Ground,Cable Available,Electricity Connected,Internet-Fiber,Natural Gas Connected,Phone Available,Sewer Connected,Water Connected
Extra details you may need to know
Lot Information
8,189 Sqft.
761 (m²)./Appraisal District
If you like this property and are also considering selling your current home now, you may find out how. Request your home selling analysis report featuring Recently Sold, Market Analysis, Home Valuations, and Market Update.
Start Selling your Home
Information source
unlock MLS
Source last updated Apr 27, 2026 at 11:37 PM
Listing last updated Apr 27, 2026 at 07:37 PM
View website →
Check out assigned and nearby schools along with their detailed ratings and essential information to help you make informed decisions.
Assigned schools
View nearby schools 
Notice & Disclaimer
School information is computer generated and may not be accurate or current. Buyer must independently verify and confirm enrollment. Please contact the school district to determine the schools to which this property is zoned.
Copyright© 2026 , HOUSTON REALTORS® INFORMATION SERVICE, INC. All Rights Reserved. Data Not Verified/Guaranteed by MLS