loading

2922 Laurel Mist Ct

Houston, TX 77345
Get Directions →
For Sale
Under Contract – P
4 Bedroom(s)
3 Full & 1 Half Bath(s)
2,888 Sqft
10,242 Lot Sqft
Single-Family

Audio narrative

Get full access to Premium Content

Premium Content such as Sold Prices, Property History Reports and Saved Searches.

Sign in to view Premium Content

Description

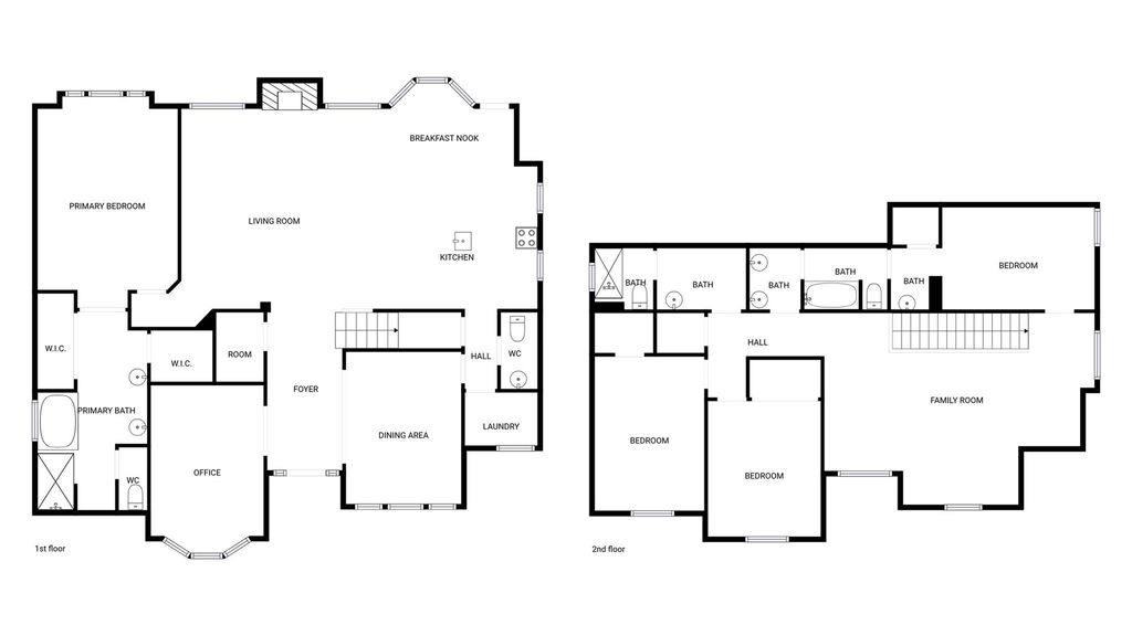
Explore the interior of 2922 Laurel Mist Ct where an accent backsplash in kitchen defines the space. The kitchen contains all stainless steel appliances and a kitchen island. A fireplace serves the main area. The primary bathroom is a haven of relaxation with double sinks and a jacuzzi tub and a walk in closet in primary bedroom. A covered patio leads to a fenced in backyard. This residence stands ready for ownership. Included 100-Day Home Warranty with buyer activation

MLS#
72983510
List Price
$350,000 ($121/Sqft.)
Listing Status
Under Contract – P
Address
2922 Laurel Mist Ct
City
Houston
State
TX
Zip Code
77345
County
Harris County
Legal Description
LT 41 BLK 2 MILLS CREEK VILLAGE SEC 2
Property Type
Single-Family
Bedroom
4 Bedroom(s)
Bath
3 Full & 1 Half Bath(s)
Garages
2 / Detached
Stories
2
Building Size
2,888 Sqft/Seller
Architecture Style
Traditional
Year Built
1997 /Seller
Lot Size
10,242 Sqft/Appraisal District
Maintenance Fee
$644 / Annually
Key Map©
297Q
Market Area

Exterior

Roof
Composition
Foundation
Slab
Private Pool
No
Exterior Type
Stone
Lot Description
Other
Water Sewer
Public Sewer, Public Water

Extra details you may need to know

Dwelling Type
Free Standing
HOA Mandatory
Yes
List Type
Exclusive Agency to Sell/Lease

Financial information

Financing Considered
Cash Sale, Conventional, VA
Other Fees
Yes / 540
Maintenance Fee
Mandatory / $644 / Annually
Maint Fee Includes
Other
Taxes w/o Exemp
$8,635/2025
Tax Rate
2.3593

Interior

Fireplace
1/Gas Connections
Floors
Carpet
Room Description
Utility Room in House
Cooling
Central Gas
Heating
Central Gas
Dishwasher
Yes
Microwave
Yes
Interior
Alarm System - Owned

Rooms

Primary Bedroom
13 x 19, 1st
Bedroom
10 x 14, 2nd
Bedroom
10 x 12, 2nd
Bedroom
14 x 9, 2nd

Lot Information

Lot Size
10,242 Sqft. /Appraisal District
loading
Disclaimer: Lot configuration and dimensions are estimates, not based on personal knowledge and come from a third party (Digital Map Products); therefore, you should not rely on the estimates and perform independent confirmation as to their accuracy
Ready to Sell your Home?
If you like this property and are also considering selling your current home now, you may find out how. Request your home selling analysis report featuring Recently Sold, Market Analysis, Home Valuations, and Market Update.
Start Selling your Home

Listing Broker

Information source

Houston Association of REALTORS®
Source last updated Apr 15, 2026 at 12:47 PM
Listing last updated Mar 29, 2026 at 04:27 PM
View website →

Know the property tax history and market value

Cost/Sqft based on tax value

------------------------------
---------- ---------- ---------- ----------
---------- ---------- ---------- ----------
---------- ---------- ---------- ----------
---------- ---------- ---------- ----------
---------- ---------- ---------- ----------
---------- ---------- ---------- ----------

-------------

-------------
------------- -------------
------------- -------------
-------------------------- -------------
-------------------------- -------------
------------- -------------

-------------

-------------
------------- -------------
------------- -------------
------------- -------------
------------- -------------
------------- -------------

Estimate your mortgage payments

Create and estimate your monthly mortgage payment and property taxes based on past rates.

Estimated Monthly Payments

DOWN PAYMENT
Loan Term
$-----
$-----
Full Page
Presented by TimeValue Software ©2021
Principal & InterestTaxes30.4%69.6%
Listing TaxNumbers
Principal & Interest2,841
Taxes1,242
--------
-------- --------

Explore school information

Check out assigned and nearby schools along with their detailed ratings and essential information to help you make informed decisions.

Assigned schools

View nearby schools view nearby schools

Notice & Disclaimer
School information is computer generated and may not be accurate or current. Buyer must independently verify and confirm enrollment. Please contact the school district to determine the schools to which this property is zoned.
Copyright© 2026 , HOUSTON REALTORS® INFORMATION SERVICE, INC. All Rights Reserved. Data Not Verified/Guaranteed by MLS
Schedule a tour
Tomorrow
16
Apr
Fri
17
Apr
Sat
18
Apr
Sun
19
Apr
Other dates
Contact agent
Call

Schedule a Tour

Thu
16
Apr
Fri
17
Apr
Sat
18
Apr
Sun
19
Apr
Mon
20
Apr
Tue
21
Apr
Wed
22
Apr
Thu
23
Apr
Fri
24
Apr
Sat
25
Apr