loading

1658 Reynolds Ln

Sherman, TX 75092
Get Directions →
Sold
Sold
$325,001 - $370,000
Sold on November 07, 2025
4 Bedroom(s)
2 Full & 1 Half Bath(s)
2,400 Sqft
10.00 Lot Acres
Residential - Mobile

Get full access to Premium Content

Premium Content such as Sold Prices, Property History Reports and Saved Searches.

Sign in to view Premium Content

Description

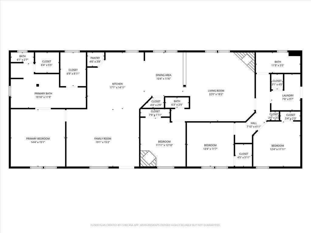
Spacious 2020 manufactured home on 10 acres. The home features a large front porch, 2 living rooms, one with a wood burning fireplace, a master suite with an oversized garden tub, separate vanities and separate walk-in closets. The kitchen features a breakfast bar, plenty of cabinets for storage, and a pantry. On the other side of the home, you will find 3 additional bedrooms with spacious closets, 1.5 bathrooms, plenty of storage closets, a built-in desk, and large laundry room. Outside you will find a 24x30 steel barn that could be used for covered parking or a dream workshop. RV site with 30-amp meter. The property is fenced and cross fenced. The back of the property has plenty of timber and has a creek flowing through. Perfect for hunting and exploring. No known restrictions or flood zone. True country living only minutes from shopping, dining, parks, major Highways for easy commuting, Lake Texoma, and Hagerman National Wildlife Refuge. QUALIFIES FOR ASSUMABLE LOAN! FHA 3.75 INTEREST RATE!

MLS#
NTREIS-21082363
List Price
$385,000 ($160/Sqft.)
Sold Price Range
$325,001 - $370,000
Listing Status
Sold
Address
1658 Reynolds Ln
City
Sherman
State
TX
Zip Code
75092
County
Grayson County
Subdivision
Robertsons Farm
Legal Description
G-1325 WATKINS W A A-G1325, ACRES 10.0
Property Type
Residential - Mobile
Bedroom
4 Bedroom(s)
Bath
2 Full & 1 Half Bath(s)
Stories
1
Architecture Style
Craftsman
Year Built
2020 / Appraisal District
Building Size
2,400 Sqft/Appraisal District
Lot Size
10.00 Lot Acres./Appraisal District

Rooms

Living
22 x 18, 1st
Living
19 x 15, 1st
Dining
10 x 12, 1st
Kitchen
17 x 15, 1st
Primary Bedroom
15 x 14, 1st
Bedroom
12 x 13, 1st
Bedroom
12 x 12, 1st
Bedroom
12 x 12, 1st
Bath
12 x 6, 1st
Half Bath
8 x 2, 1st

Interior

Number Of Living Area
2
Fireplace
1/Living Room,Wood Burning
Floors
Laminate
Cooling
Central Air, Electric
Heating
Central, Electric, Fireplace(s)
Window
Window Coverings
Appliances
Dishwasher, Electric Cooktop, Electric Oven, Microwave, Refrigerator
Other Equipment
Satellite Dish,Other
Security System
Smoke Detector(s)
Interior
Built-in Features, Decorative Lighting, High Speed Internet Available, Open Floorplan, Walk-In Closet(s)

Exterior

Roof
Composition
Foundation
Pillar/Post/Pier
Private Pool
No
Exterior Type
Siding
Lot Description
Acreage, Lrg. Backyard Grass, Many Trees
Garage Size
30 X 24
Parking
Additional Parking, Driveway, Gravel, Outside, Storage
Parking Space
Garage 0 / Carport 0 / Total Covered 2
Fencing
Barbed Wire,Cross Fenced,Partial
Porch
Front Porch
Easements
Electric,Pipeline,Utilities
Utility
Asphalt,City Water,Co-op Electric,Gravel/Rock,Septic
Exterior
RV Hookup, Stable/Barn, Storage

Extra details you may need to know

Dwelling Type
Mobile Doublewide w/Land

Lot Information

Lot Size
10.00 Lot Acres /Appraisal District
loading
Disclaimer: Lot configuration and dimensions are estimates, not based on personal knowledge and come from a third party (Digital Map Products); therefore, you should not rely on the estimates and perform independent confirmation as to their accuracy

Information source

North Texas Real Estate Information Systems, Inc.
Source last updated Apr 17, 2026 at 04:17 PM
Listing last updated Nov 07, 2025 at 01:30 PM
View website →

Know the property tax history and market value

Cost/Sqft based on tax value

------------------------------
---------- ---------- ---------- ----------
---------- ---------- ---------- ----------
---------- ---------- ---------- ----------
---------- ---------- ---------- ----------
---------- ---------- ---------- ----------
---------- ---------- ---------- ----------

-------------

-------------
------------- -------------
------------- -------------
-------------------------- -------------
-------------------------- -------------
------------- -------------

-------------

-------------
------------- -------------
------------- -------------
------------- -------------
------------- -------------
------------- -------------

Estimate your mortgage payments

Create and estimate your monthly mortgage payment and property taxes based on past rates.

Estimated Monthly Payments

DOWN PAYMENT
Loan Term
$-----
$-----
Full Page
Presented by TimeValue Software ©2021
Principal & InterestTaxes30.4%69.6%
Listing TaxNumbers
Principal & Interest2,841
Taxes1,242
--------
-------- --------

Explore school information

Check out assigned and nearby schools along with their detailed ratings and essential information to help you make informed decisions.

Assigned schools

No school information are there.

View nearby schools view nearby schools

Notice & Disclaimer
School information is computer generated and may not be accurate or current. Buyer must independently verify and confirm enrollment. Please contact the school district to determine the schools to which this property is zoned.

Soundscore

loading
Copyright© 2026 , HOUSTON REALTORS® INFORMATION SERVICE, INC. All Rights Reserved. Data Not Verified/Guaranteed by MLS
Contact agent
Call