loading

1002 S 9th St

Merkel, TX 79536
Get Directions →
4 Bedroom(s)
2 Full Bath(s)
1,843 Sqft
0.21 Lot Acres
Residential - Single Family

Audio narrative

Get full access to Premium Content

Premium Content such as Sold Prices, Property History Reports and Saved Searches.

Sign in to view Premium Content

Description

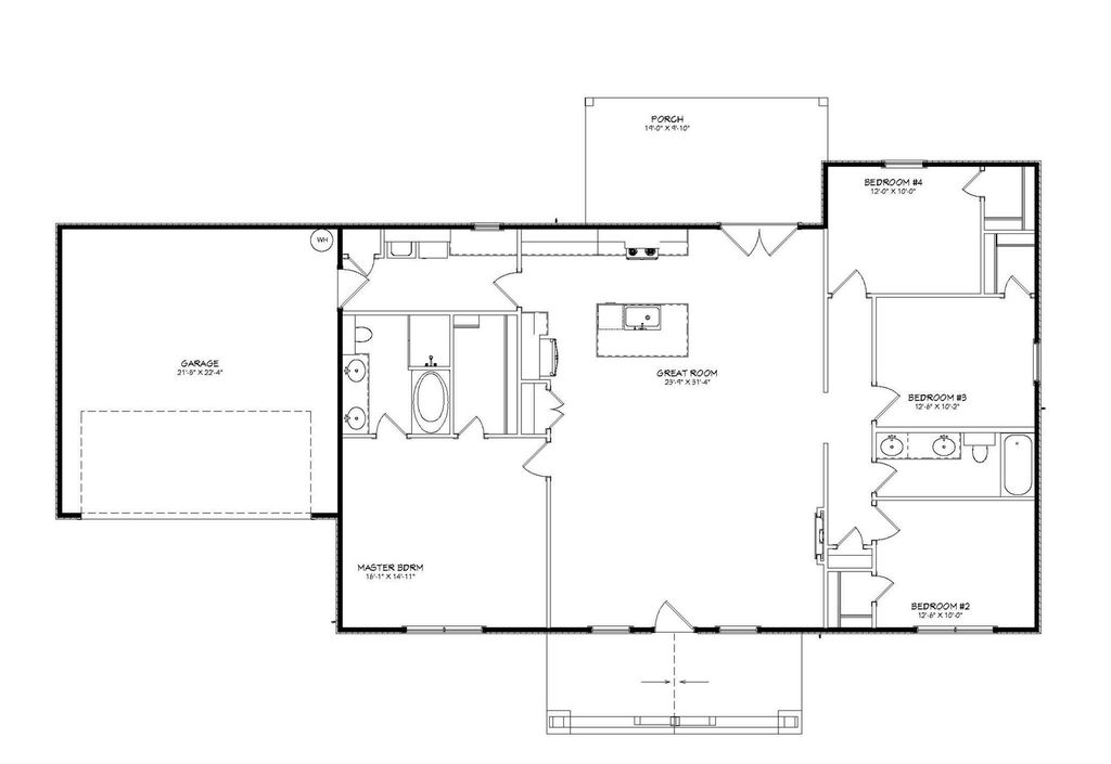
New construction proposed by Red Oak Custom Builders starting soon in Merkel! Wonderful open floorplan with 4 Bedrooms & 2 Bathrooms built on a 9ft plate. Builder's plans for the home - Kitchen to have painted cabinetry, granite on counters, gorgeous walnut butcher block on island, & SS appliances (range, microwave, dishwasher). Living room will have an electric FP. The primary bedroom ensuite has a tub, separate tiled shower, and 2-sink vanity with granite counters. LVP main living areas, carpet in bedrooms. Foam insulation. Class 4 metal roof. Covered porches, front & back. Metal privacy fence and a 2-car garage. Landscaping to include sod in front & back. Wise camera system with 2 cameras & ring doorbell. Builder warranty. This home is just starting so builder's finish out plans ARE SUBJECT TO CHANGE and-or buyer has the opportunity to choose finishes and make some changes at this point, within builder's allowances. The barndos on the corner of S. 6th and Rose St and the one at 822 Rose were also built by Red Oak Custom Builders. Photos from those homes are just representative of the builder's style. All measurements are approximate. Lot size is also approximate since it's a larger lot that has been subdivided.

MLS#
NTREIS-21234734
List Price
$340,000 ($184/Sqft.)
Listing Status
For Sale
Address
1002 S 9th St
City
Merkel
State
TX
Zip Code
79536
County
Taylor County
Subdivision
Miller Addn
Property Type
Residential - Single Family
Bedroom
4 Bedroom(s)
Bath
2 Full Bath(s)
Garages
2 / Attached
Stories
1
Building Size
1,843 Sqft/Appraisal District
Architecture Style
Barndominium
Year Built
2026 /Appraisal District
Lot Size
0.21 Lot Acres/BUILDER

Rooms

Living
1st
Primary Bedroom
1st

Interior

Number Of Living Area
1
Fireplace
1/Electric,Living Room
Floors
Carpet, Luxury Vinyl Plank
Cooling
Central Air, Electric
Heating
Central, Electric
Appliances
Dishwasher, Disposal, Electric Range, Electric Water Heater, Microwave
Security System
Carbon Monoxide Detector(s),Smoke Detector(s)
Interior
Decorative Lighting, Granite Counters, High Speed Internet Available, Kitchen Island, Open Floorplan, Pantry, Walk-In Closet(s)

Exterior

Roof
Metal
Foundation
Slab
Private Pool
No
Exterior Type
Rock/Stone, Steel Siding
Lot Description
Interior Lot
Parking
Garage, Garage Door Opener, Garage Faces Front
Parking Space
Garage 2 / Carport 0 / Total Covered 2
Fencing
Metal
Porch
Covered
Utility
Asphalt,City Sewer,City Water
Exterior
Covered Patio/Porch

Extra details you may need to know

Dwelling Type
Single Detached

Lot Information

Lot Size
0.21 Lot Acres /BUILDER
loading
Disclaimer: Lot configuration and dimensions are estimates, not based on personal knowledge and come from a third party (Digital Map Products); therefore, you should not rely on the estimates and perform independent confirmation as to their accuracy

Listing Broker

Information source

North Texas Real Estate Information Systems, Inc.
Source last updated Apr 17, 2026 at 01:17 AM
Listing last updated Apr 09, 2026 at 04:48 PM
View website →

Estimate your mortgage payments

Create and estimate your monthly mortgage payment and property taxes based on past rates.

Estimated Monthly Payments

DOWN PAYMENT
Loan Term
$-----
$-----
Full Page
Presented by TimeValue Software ©2021
Principal & InterestTaxes30.4%69.6%
Listing TaxNumbers
Principal & Interest2,841
Taxes1,242
--------
-------- --------

Explore school information

Check out assigned and nearby schools along with their detailed ratings and essential information to help you make informed decisions.

Assigned schools

View nearby schools view nearby schools

Notice & Disclaimer
School information is computer generated and may not be accurate or current. Buyer must independently verify and confirm enrollment. Please contact the school district to determine the schools to which this property is zoned.
Copyright© 2026 , HOUSTON REALTORS® INFORMATION SERVICE, INC. All Rights Reserved. Data Not Verified/Guaranteed by MLS
Schedule a tour
Tomorrow
18
Apr
Sun
19
Apr
Mon
20
Apr
Tue
21
Apr
Other dates
Contact agent
Call

Schedule a Tour

Sat
18
Apr
Sun
19
Apr
Mon
20
Apr
Tue
21
Apr
Wed
22
Apr
Thu
23
Apr
Fri
24
Apr
Sat
25
Apr
Sun
26
Apr
Mon
27
Apr