loading

21003 Gravel Keep

San Antonio, TX 78266
Get Directions →
Just listedJust listed
4 Bedroom(s)
3 Full Bath(s)
2,257 Sqft
Single-Family

Audio narrative

Get full access to Premium Content

Premium Content such as Sold Prices, Property History Reports and Saved Searches.

Sign in to view Premium Content

Description

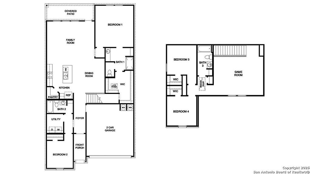
Tour The Mitchell floor plan at Brookstone Creek in San Antonio, TX. This home delivers the space, comfort and flexibility your lifestyle demands - offering 2257 square feet, four bedrooms and 3 full bathrooms across a smart and functional two-story layout. Your new home comes equipped with a full landscaping and irrigation package, ensuring both beauty and curb appeal. The heart of the home is the open-concept kitchen, dining and living room area where you'll enjoy gathering with family and friends. The kitchen showcases stainless steel appliances, quartz or granite countertops, flat panel cabinetry, an elegant kitchen island with a deep farmhouse-style sink and white subway tile backsplash for a timeless finish. Your primary bedroom suite is located on the main level and tucked away toward the back of the home for privacy. It includes a spacious, tiled walk-in shower, dual vanity sinks and a walk-in closet. A secondary bedroom and full bath on the first floor offer an ideal

MLS#
SA1958638
List Price
$439,000 ($195/Sqft.)
Listing Status
For Sale
Address
21003 Gravel Keep
City
San Antonio
State
TX
Zip Code
78266
County
Bexar County
Subdivision
BROOKSTONE CREEK
Legal Description
BLOCK 6, LOT 50
Property Type
Single-Family
Bedroom
4 Bedroom(s)
Bath
3 Full Bath(s)
Garages
2 / Attached
Stories
2
Building Size
2,257 Sqft/Builder
Year Built
2025 /Appraisal District
Maintenance Fee
$960 / Annually

Exterior

Roof
Composition
Foundation
Slab
Private Pool
No
Exterior Type
Other, Stone
Garage Carport
Auto Garage Door Opener
Water Sewer
Other Water/Sewer
Road Surface
Curbs
Exterior
Covered Patio/Deck, Sprinkler System

Financial information

Financing Considered
Cash Sale, Conventional, FHA, Texas Veterans Land Board, USDA Loan, VA
Other Fees
Yes / 1 / 0.000
Maintenance Fee
Mandatory / $960 / Annually
Taxes w/o Exemp
$1/2025

Extra details you may need to know

HOA Mandatory
Yes
List Type
Exclusive Right to Sell/Lease

Interior

Floors
Carpet, Laminate
Bathroom Description
Primary Bath: Double Sinks, Primary Bath: Shower Only
Bedroom Description
En-Suite Bath,Primary Bed - 1st Floor,Walk-In Closet
Cooling
Other Cooling
Heating
Central Gas
Connections
Washer Connections
Washer/Dryer Conn
Yes
Compactor
No
Dishwasher
Yes
Disposal
Yes
Microwave
Yes
Energy Feature
Digital Program Thermostat, HVAC>13 SEER, Insulated/Low-E windows, Other Energy Features, Radiant Attic Barrier, Tankless/On-Demand H2O Heater
Interior
Alarm System - Owned, Fire/Smoke Alarm, Island Kitchen

Listing Broker

Information source

LERA MLS
Source last updated Apr 16, 2026 at 05:49 PM
Listing last updated Apr 16, 2026 at 03:58 PM
View website →

Know the property tax history and market value

Cost/Sqft based on tax value

------------------------------
---------- ---------- ---------- ----------
---------- ---------- ---------- ----------
---------- ---------- ---------- ----------
---------- ---------- ---------- ----------
---------- ---------- ---------- ----------
---------- ---------- ---------- ----------

-------------

-------------
------------- -------------
------------- -------------
-------------------------- -------------
-------------------------- -------------
------------- -------------

-------------

-------------
------------- -------------
------------- -------------
------------- -------------
------------- -------------
------------- -------------

Estimate your mortgage payments

Create and estimate your monthly mortgage payment and property taxes based on past rates.

Estimated Monthly Payments

DOWN PAYMENT
Loan Term
$-----
$-----
Full Page
Presented by TimeValue Software ©2021
Principal & InterestTaxes30.4%69.6%
Listing TaxNumbers
Principal & Interest2,841
Taxes1,242
--------
-------- --------

Explore school information

Check out assigned and nearby schools along with their detailed ratings and essential information to help you make informed decisions.

Assigned schools

View nearby schools view nearby schools

Notice & Disclaimer
School information is computer generated and may not be accurate or current. Buyer must independently verify and confirm enrollment. Please contact the school district to determine the schools to which this property is zoned.
Copyright© 2026 , HOUSTON REALTORS® INFORMATION SERVICE, INC. All Rights Reserved. Data Not Verified/Guaranteed by MLS
Contact agent
Call Callback request