loading

13365 Burbot Dr

Conroe, TX 77384
Get Directions →
New constructionNew construction
4 Bedroom(s)
2 Full & 1 Half Bath(s)
2,111 Sqft
Single-Family

Audio narrative

Get full access to Premium Content

Premium Content such as Sold Prices, Property History Reports and Saved Searches.

Sign in to view Premium Content

Description

Seller May Contribute to Buyer Expenses. Explanation ↓

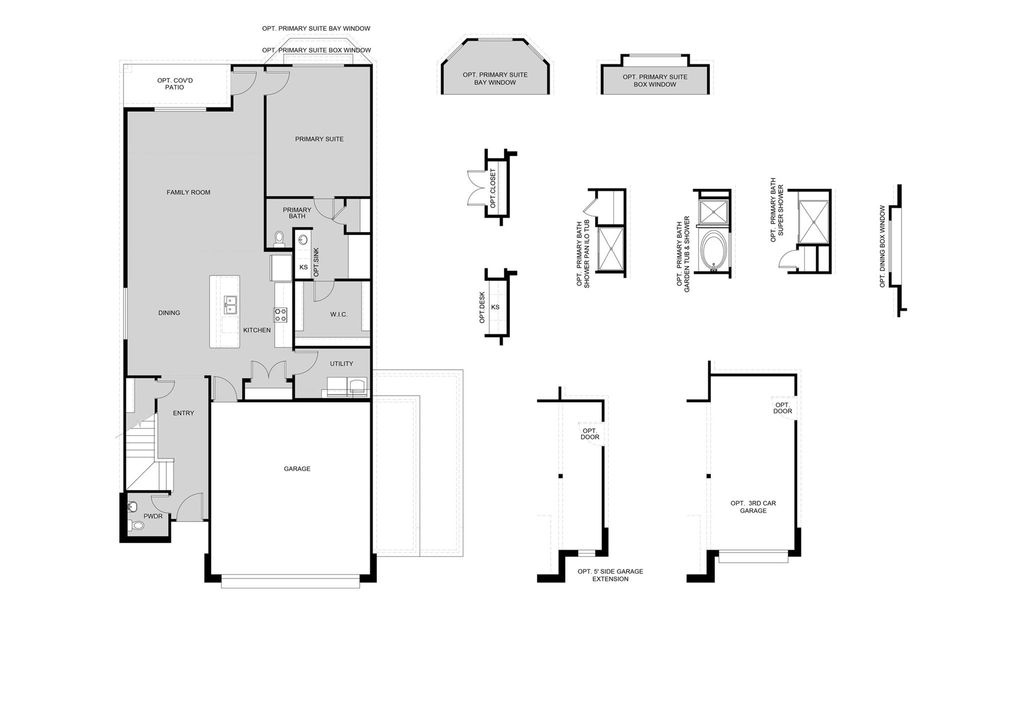
Love where you live in River's Edge in Conroe, TX! Home is zoned to the excellent Woodlands schools - Eissler Elementary School, Mitchell Intermediate School, McCullough JH School, and Woodlands High School. Now featuring Legend’s NEW Smart Home package and Signature Design Collection! The Wisteria floor plan is a stunning two-story home, with soaring ceilings in the foyer, and features 4 bedrooms, 2.5 baths, a game room, and 2-car garage. This home has it all, including privacy blinds and vinyl plank flooring throughout the common areas! The gourmet kitchen is sure to please with 42" cabinetry, silestone countertops, stainless-steel appliances, and a box window at the dining area. Retreat to the first-floor Owner's Suite featuring a box window, double sinks with silestone countertops, a separate tub and shower, and walk-in closet. Enjoy the great outdoors with a covered patio! Don't miss your opportunity to call River's Edge home, schedule a visit today!

MLS#
11586426
List Price
$301,865 ($143/Sqft.)
Listing Status
For Sale
Address
13365 Burbot Dr
City
Conroe
State
TX
Zip Code
77384
County
Montgomery County
Legal Description
Lot 2 Block 11
Property Type
Single-Family
Bedroom
4 Bedroom(s)
Bath
2 Full & 1 Half Bath(s)
Garages
2 / Attached
Stories
2
Building Size
2,111 Sqft/Builder
Architecture Style
Traditional
Year Built
2026 /Builder
Maintenance Fee
$550 / Annually
Market Area

Rooms

Family Room
15'x16', 1st
Dining
9'x14', 1st
Kitchen
9'x14', 1st
Primary Bedroom
12'x15', 1st
Bedroom
13'x10', 2nd
Bedroom
12'x10', 2nd
Bedroom
13'x10', 2nd
Game Room
15'x14', 2nd

Exterior

Roof
Composition
Foundation
Slab
Private Pool
No
Exterior Type
Cement Board
Lot Description
Subdivision Lot
Garage Carport
Double-Wide Driveway
Water Sewer
Water District
Area Pool
Yes
Exterior
Back Yard Fenced, Patio/Deck, Sprinkler System

Extra details you may need to know

Dwelling Type
Free Standing
HOA Mandatory
Yes
List Type
Exclusive Right to Sell/Lease

Financial information

Financing Considered
Cash Sale, Conventional, FHA, Seller May Contribute to Buyer's Closing Costs, VA
Other Fees
Yes / 275
Maintenance Fee
Mandatory / $550 / Annually
Tax Rate
3.08

Interior

Countertop
Silestone
Floors
Carpet, Vinyl Plank
Bathroom Description
Half Bath, Primary Bath: Double Sinks, Primary Bath: Separate Shower, Primary Bath: Soaking Tub, Secondary Bath(s): Tub/Shower Combo
Bedroom Description
En-Suite Bath,Primary Bed - 1st Floor,Split Plan,Walk-In Closet
Kitchen Description
Breakfast Bar,Kitchen open to Family Room,Pantry
Room Description
Family Room, Gameroom Up, Utility Room in House
Cooling
Central Electric
Heating
Central Gas
Connections
Electric Dryer Connections, Washer Connections
Dishwasher
Yes
Disposal
Yes
Microwave
Yes
Oven
Gas Oven
Range
Gas Range
Energy Feature
Ceiling Fans, Digital Program Thermostat, Energy Star Appliances, Energy Star/CFL/LED Lights, High-Efficiency HVAC, HVAC>13 SEER, Insulated/Low-E windows, Insulation - Blown Fiberglass, Radiant Attic Barrier
Interior
Fire/Smoke Alarm, High Ceiling

Lot Information

Lot Size
0 Sqft. /Survey
loading
Disclaimer: Lot configuration and dimensions are estimates, not based on personal knowledge and come from a third party (Digital Map Products); therefore, you should not rely on the estimates and perform independent confirmation as to their accuracy
Ready to Sell your Home?
If you like this property and are also considering selling your current home now, you may find out how. Request your home selling analysis report featuring Recently Sold, Market Analysis, Home Valuations, and Market Update.
Start Selling your Home

Listing Broker

Information source

Houston Association of REALTORS®
Source last updated Apr 20, 2026 at 05:57 AM
Listing last updated Apr 10, 2026 at 04:58 AM
View website →

Know the property tax history and market value

Cost/Sqft based on tax value

------------------------------
---------- ---------- ---------- ----------
---------- ---------- ---------- ----------
---------- ---------- ---------- ----------
---------- ---------- ---------- ----------
---------- ---------- ---------- ----------
---------- ---------- ---------- ----------

-------------

-------------
------------- -------------
------------- -------------
-------------------------- -------------
-------------------------- -------------
------------- -------------

-------------

-------------
------------- -------------
------------- -------------
------------- -------------
------------- -------------
------------- -------------

Estimate your mortgage payments

Create and estimate your monthly mortgage payment and property taxes based on past rates.

Estimated Monthly Payments

DOWN PAYMENT
Loan Term
$-----
$-----
Full Page
Presented by TimeValue Software ©2021
Principal & InterestTaxes30.4%69.6%
Listing TaxNumbers
Principal & Interest2,841
Taxes1,242
--------
-------- --------

Explore school information

Check out assigned and nearby schools along with their detailed ratings and essential information to help you make informed decisions.

Assigned schools

View nearby schools view nearby schools

Notice & Disclaimer
School information is computer generated and may not be accurate or current. Buyer must independently verify and confirm enrollment. Please contact the school district to determine the schools to which this property is zoned.
Copyright© 2026 , HOUSTON REALTORS® INFORMATION SERVICE, INC. All Rights Reserved. Data Not Verified/Guaranteed by MLS
Schedule a tour
Tomorrow
21
Apr
Wed
22
Apr
Thu
23
Apr
Fri
24
Apr
Other dates
Contact agent
Call

Schedule a Tour

Tue
21
Apr
Wed
22
Apr
Thu
23
Apr
Fri
24
Apr
Sat
25
Apr
Sun
26
Apr
Mon
27
Apr
Tue
28
Apr
Wed
29
Apr
Thu
30
Apr