Premium Content such as Sold Prices, Property History Reports and Saved Searches.
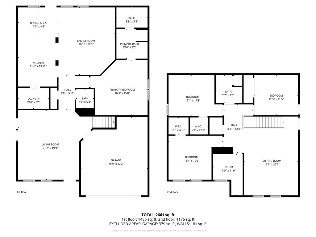
This is a beautiful 4 bedroom, 2.5 bathroom home in the gorgeous Wheeler Ridge community of Denton. Upon entry you will immediately appreciate the abundance of natural light and open concept floor plan. On the first floor you will find 2 large living areas, a formal dining room, and a large kitchen overlooking the second family room. The kitchen provides ample cabinet space, bar seating as well as a breakfast nook, and is complete with granite countertops and stainless steel appliances. A half bathroom and the primary bedroom is also located downstairs. The primary bedroom is spacious and includes a large bathroom with a garden tub and separate shower. Upstairs is a huge game room, 3 additional bedrooms and full bathroom. The backyard includes a covered patio overlooking a good sized yard that is perfect for activities. Overall this is a very clean and well maintained home located in an excellent location close to great schools, shopping, dining, and entertainment.
| ---------- | ---------- | ---------- | ---------- |
|---|---|---|---|
| ---------- | ---------- | ---------- | ---------- |
| ---------- | ---------- | ---------- | ---------- |
| ---------- | ---------- | ---------- | ---------- |
| ---------- | ---------- | ---------- | ---------- |
| ---------- | ---------- | ---------- | ---------- |
| ------------- | ------------- |
| ------------- | ------------- |
| -------------------------- | ------------- |
| -------------------------- | ------------- |
| ------------- | ------------- |
| ------------- | ------------- |
| ------------- | ------------- |
| ------------- | ------------- |
| ------------- | ------------- |
| ------------- | ------------- |
Check out assigned and nearby schools along with their detailed ratings and essential information to help you make informed decisions.