loading

413 Cocopa Dr

Lake Kiowa, TX 76240
Get Directions →
Just listedJust listed
5 Bedroom(s)
2 Full & 1 Half Bath(s)
2,377 Sqft
0.35 Lot Acres
Residential - Single Family

Audio narrative

Get full access to Premium Content

Premium Content such as Sold Prices, Property History Reports and Saved Searches.

Sign in to view Premium Content

Description

This inviting property offers the perfect blend of lake community living and peaceful golf-course views. The home sits on a beautiful, heavily treed lot and features a highly desired circular drive plus an oversized drive-through garage with 18' doors and a detached third car garage or workshop. Lake Kiowa is ideal for full-time living or a weekend retreat; the property includes a serene 51' x 11' screened-in porch overlooking panoramic views of Hole #14 and the lake in the distance. Inside, the mountain-lodge feel is enhanced by rich wood-paneled walls, a dramatic wood-vaulted ceiling and a striking wood catwalk and stairway leading to the upper level. The vaulted loft connects a spacious office or 4th bedroom and a large bunk room that sleeps seven, creating an inviting retreat for guests and family. Lake Kiowa is a private, 24 hour guard-gated community built around a 600-acre spring-fed lake with boating, fishing, kayaking and swimming. Residents enjoy two manicured beaches with playgrounds, covered pavilions, picnic areas and community restrooms. The private 18-hole championship golf course weaves through the community, offering scenic lake views, wooded fairways and challenges for golfers of all levels. It is paired with practice facilities, pro shop & an active golf community that keeps the course vibrant all year long. Par 3 course is available for a fun, shorter course perfect for beginners or a quick round. Additional amenities include lighted basketball and tennis pickleball courts, walking paths on both the north and south ends of the lake and Little Fox Pond reserved for kids 16 and under. Enjoy year-round hosted fishing events. Multiple boat launches provide easy lake access. The Lodge is the social hub of Lake Kiowa, offering dining, a bar, patio seating, meeting rooms & space for community activities. The community hosts large gatherings for Easter, the 4th of July fireworks and Christmas. Residents cherish traditions centered around these events.

MLS#
NTREIS-21252295
List Price
$487,000 ($205/Sqft.)
Listing Status
For Sale
Address
413 Cocopa Dr
City
Lake Kiowa
State
TX
Zip Code
76240
County
Cooke County
Subdivision
Lake Kiowa Map 9
Legal Description
LAKE KIOWA MAP 9; LOT 385; ACRES .3489
Property Type
Residential - Single Family
Bedroom
5 Bedroom(s)
Bath
2 Full & 1 Half Bath(s)
Garages
3 / Attached
Stories
2
Building Size
2,377 Sqft/Appraisal District
Year Built
1986 /Appraisal District
Lot Size
0.35 Lot Acres/PUBREC
LP / Acre
$1,395,415 / Acre
Maintenance Fee
$350 / Monthly

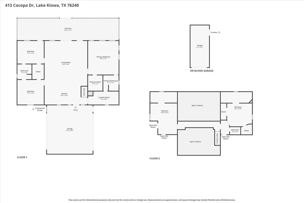
Rooms

Living
22 x 20, 1st
Kitchen
22 x 13, 1st
Primary Bedroom
16 x 17, 1st
Bedroom
14 x 12, 1st
Bedroom
14 x 13, 1st
Bedroom
14 x 22, 2nd
Bedroom
16 x 18, 2nd
Bath
1st
Half Bath
2nd
Utility Room Desc
16 x 7, 1st

Interior

Number Of Living Area
1
Floors
Carpet, Luxury Vinyl Plank
Cooling
Central Air, Electric
Heating
Central, Electric
Window
Window Coverings
Appliances
Dishwasher, Electric Range, Electric Water Heater, Microwave
Security System
Gated Community,Security Gate,Security Guard
Interior
Cable TV Available, Eat-in Kitchen, Granite Counters, High Speed Internet Available, Kitchen Island, Natural Woodwork, Open Floorplan, Paneling, Vaulted Ceiling(s), Walk-In Closet(s)

Exterior

Roof
Composition
Foundation
Slab
Private Pool
No
Lot Description
Interior Lot, Landscaped, Lrg. Backyard Grass, Many Trees, On Golf Course, Sprinkler System
Garage Size
24 X 25
Parking
Additional Parking, Circular Driveway, Drive Through, Garage
Parking Space
Garage 3 / Carport 0 / Total Covered 3
Porch
Covered,Rear Porch,Roof Top Deck/Patio,Screened
Utility
Aerobic Septic,Cable Available,Concrete,Electricity Connected,Private Road,Private Water,Septic
Exterior
Covered Patio/Porch, Rain Gutters

Extra details you may need to know

Dwelling Type
Single Detached
Community Features
Boat Ramp,Club House,Fishing,Gated,Golf,Guarded Entrance,Jogging Path/Bike Path,Lake,Pickle Ball Court,Playground,Restaurant,Tennis Court(s)

Financial information

Maintenance Fee
$350/Monthly
Maint Fee Includes
Full Use of Facilities

Lot Information

Lot Size
0.35 Lot Acres /PUBREC
loading
Disclaimer: Lot configuration and dimensions are estimates, not based on personal knowledge and come from a third party (Digital Map Products); therefore, you should not rely on the estimates and perform independent confirmation as to their accuracy
Ready to Sell your Home?
If you like this property and are also considering selling your current home now, you may find out how. Request your home selling analysis report featuring Recently Sold, Market Analysis, Home Valuations, and Market Update.
Start Selling your Home

Information source

North Texas Real Estate Information Systems, Inc.
Source last updated Apr 28, 2026 at 08:37 AM
Listing last updated Apr 28, 2026 at 11:38 AM
View website →

Know the property tax history and market value

Cost/Sqft based on tax value

------------------------------
---------- ---------- ---------- ----------
---------- ---------- ---------- ----------
---------- ---------- ---------- ----------
---------- ---------- ---------- ----------
---------- ---------- ---------- ----------
---------- ---------- ---------- ----------

-------------

-------------
------------- -------------
------------- -------------
-------------------------- -------------
-------------------------- -------------
------------- -------------

-------------

-------------
------------- -------------
------------- -------------
------------- -------------
------------- -------------
------------- -------------

Estimate your mortgage payments

Create and estimate your monthly mortgage payment and property taxes based on past rates.

Estimated Monthly Payments

DOWN PAYMENT
Loan Term
$-----
$-----
Full Page
Presented by TimeValue Software ©2021
Principal & InterestTaxes30.4%69.6%
Listing TaxNumbers
Principal & Interest2,841
Taxes1,242
--------
-------- --------

Explore school information

Check out assigned and nearby schools along with their detailed ratings and essential information to help you make informed decisions.

Assigned schools

No school information are there.

View nearby schools view nearby schools

Notice & Disclaimer
School information is computer generated and may not be accurate or current. Buyer must independently verify and confirm enrollment. Please contact the school district to determine the schools to which this property is zoned.
Copyright© 2026 , HOUSTON REALTORS® INFORMATION SERVICE, INC. All Rights Reserved. Data Not Verified/Guaranteed by MLS
Schedule a tour
Tomorrow
29
Apr
Thu
30
Apr
Fri
01
May
Sat
02
May
Other dates
Contact agent
Call

Schedule a Tour

Wed
29
Apr
Thu
30
Apr
Fri
01
May
Sat
02
May
Sun
03
May
Mon
04
May
Tue
05
May
Wed
06
May
Thu
07
May
Fri
08
May