loading

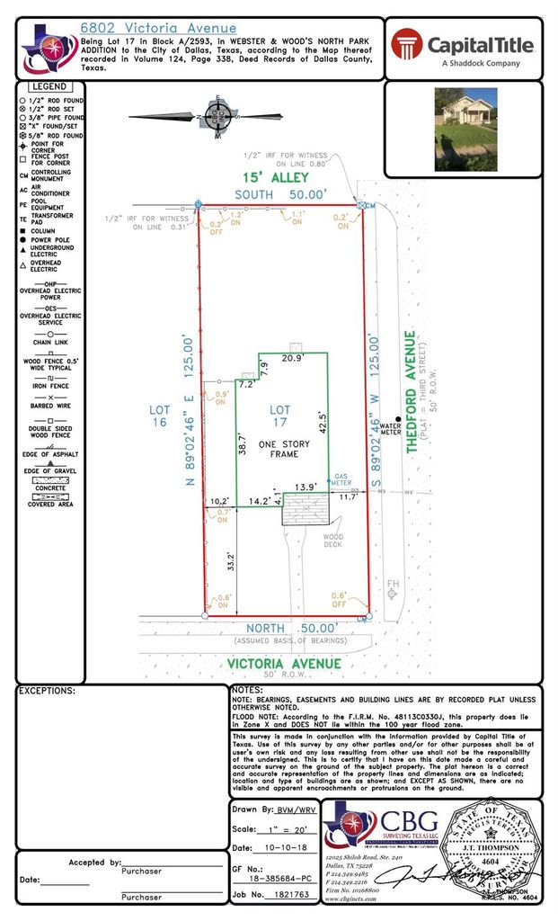
6802 Victoria Ave

Dallas, TX 75209
Get Directions →
Just listedJust listed
0.14 Lot Acres

Audio narrative

Get full access to Premium Content

Premium Content such as Sold Prices, Property History Reports and Saved Searches.

Sign in to view Premium Content

Description

Prime opportunity to build in a sought-after Dallas location! This 0.135-acre lot at 6802 Victoria Avenue has already been cleared and is ready for your builder to bring your vision to life. Zoned for a duplex or a single-family residence, this property offers incredible flexibility for both homeowners and investors. Nestled in a desirable neighborhood with close proximity to shopping, dining, and major thoroughfares, this lot combines convenience with endless potential. A rare, build-ready find offered at $429,000.

MLS#
NTREIS-21235382
List Price
$429,000
Listing Status
For Sale
Address
6802 Victoria Ave
City
Dallas
State
TX
Zip Code
75209
County
Dallas County
Subdivision
Lawson
Legal Description
WEBSTER & WOOD NORTHPARK BLK A/2593 LOT 17
Year Built
1939 /Appraisal District
Lot Size
0.14 Lot Acres/PUBREC
Road Frontage
CITY

Exterior

Lot Description
Cleared
Utility
City Sewer,City Water
Road Surface
City Street

Interior

Cooling
None
Heating
None

Lot Information

Lot Size
0.14 Lot Acres /PUBREC
loading
Disclaimer: Lot configuration and dimensions are estimates, not based on personal knowledge and come from a third party (Digital Map Products); therefore, you should not rely on the estimates and perform independent confirmation as to their accuracy
Ready to Sell your Home?
If you like this property and are also considering selling your current home now, you may find out how. Request your home selling analysis report featuring Recently Sold, Market Analysis, Home Valuations, and Market Update.
Start Selling your Home

Information source

North Texas Real Estate Information Systems, Inc.
Source last updated Apr 15, 2026 at 03:59 PM
Listing last updated Apr 10, 2026 at 12:21 PM
View website →

Know the property tax history and market value

Cost/Sqft based on tax value

------------------------------
---------- ---------- ---------- ----------
---------- ---------- ---------- ----------
---------- ---------- ---------- ----------
---------- ---------- ---------- ----------
---------- ---------- ---------- ----------
---------- ---------- ---------- ----------

-------------

-------------
------------- -------------
------------- -------------
-------------------------- -------------
-------------------------- -------------
------------- -------------

-------------

-------------
------------- -------------
------------- -------------
------------- -------------
------------- -------------
------------- -------------

Estimate your mortgage payments

Create and estimate your monthly mortgage payment and property taxes based on past rates.

Estimated Monthly Payments

DOWN PAYMENT
Loan Term
$-----
$-----
Full Page
Presented by TimeValue Software ©2021
Principal & InterestTaxes30.4%69.6%
Listing TaxNumbers
Principal & Interest2,841
Taxes1,242
--------
-------- --------

Explore school information

Check out assigned and nearby schools along with their detailed ratings and essential information to help you make informed decisions.

Assigned schools

View nearby schools view nearby schools

Notice & Disclaimer
School information is computer generated and may not be accurate or current. Buyer must independently verify and confirm enrollment. Please contact the school district to determine the schools to which this property is zoned.
Copyright© 2026 , HOUSTON REALTORS® INFORMATION SERVICE, INC. All Rights Reserved. Data Not Verified/Guaranteed by MLS
Schedule a tour
Tomorrow
16
Apr
Fri
17
Apr
Sat
18
Apr
Sun
19
Apr
Other dates
Contact agent
Call Callback request

Schedule a Tour

Thu
16
Apr
Fri
17
Apr
Sat
18
Apr
Sun
19
Apr
Mon
20
Apr
Tue
21
Apr
Wed
22
Apr
Thu
23
Apr
Fri
24
Apr
Sat
25
Apr