loading

25102 Wilderness Haven Ln

Katy, TX 77493
Get Directions →
New constructionNew construction
4 Bedroom(s)
3 Full & 1 Half Bath(s)
2,695 Sqft
8,115 Lot Sqft
Single-Family

Audio narrative

Get full access to Premium Content

Premium Content such as Sold Prices, Property History Reports and Saved Searches.

Sign in to view Premium Content

Description

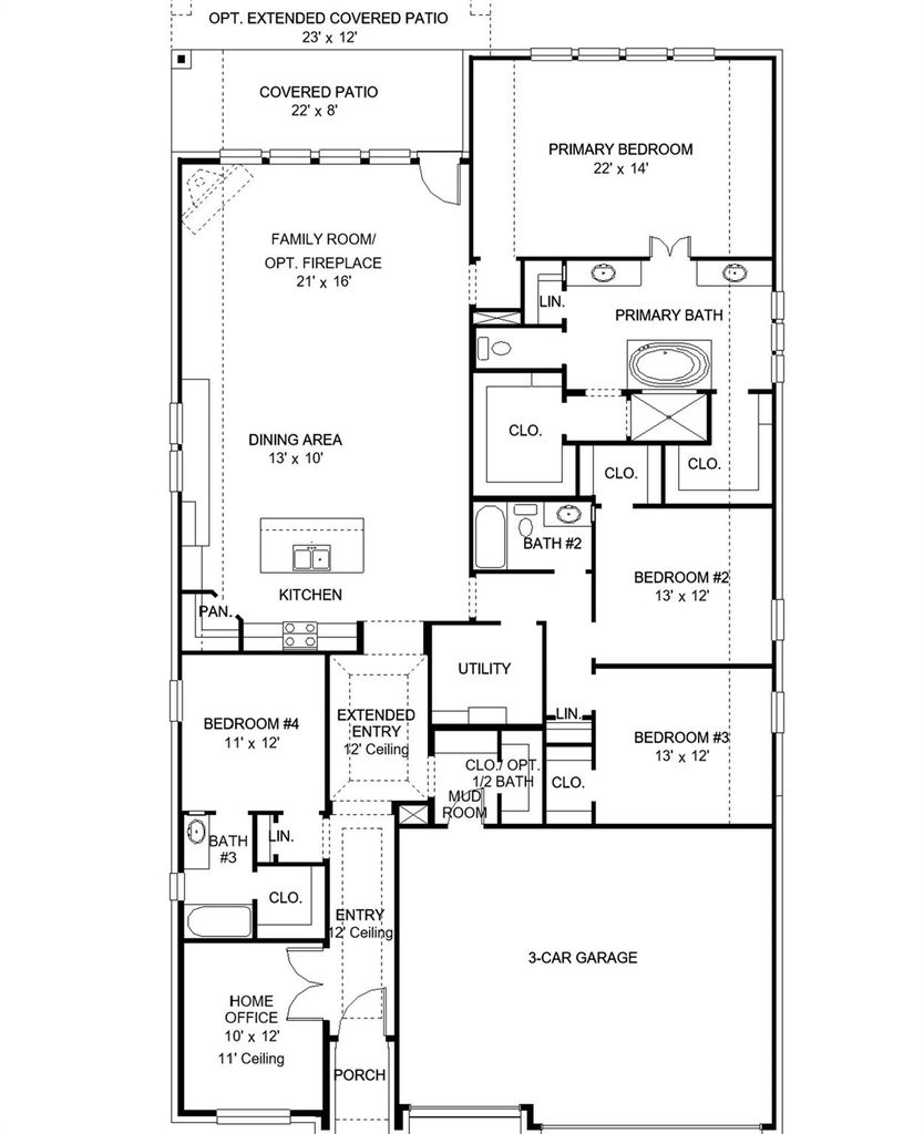
Home office with French doors set at entry with 12-foot ceiling. Extended entry highlights coffered ceiling. Open kitchen features generous counter space, a 5-burner gas cooktop, a corner walk-in pantry and island with built-in seating space. Dining area flows into open family room with wall of windows and a wood mantel fireplace. Primary suite includes bedroom with wall of windows. Dual vanities, a freestanding tub, separate glass-enclosed shower and two large walk-in closets in primary bath. A guest suite with private bath adds to this four-bedroom home. Extended covered backyard patio. Mud room off three-car garage.

MLS#
85535632
List Price
$594,900 ($221/Sqft.)
Listing Status
For Sale
Address
25102 Wilderness Haven Ln
City
Katy
State
TX
Zip Code
77493
County
Harris County
Legal Description
Block 1- Lot 14- Section 62
Property Type
Single-Family
Bedroom
4 Bedroom(s)
Bath
3 Full & 1 Half Bath(s)
Garages
3 / Attached ,Tandem
Stories
1
Building Size
2,695 Sqft/Builder
Architecture Style
Traditional
Year Built
2026 /Builder
Lot Size
8,115 Sqft/Other
Maintenance Fee
$1,464 / Annually
Market Area
Master Planned Community
Elyson

Rooms

Family Room
21 x 16, 1st
Dining
13 x 10, 1st
Primary Bedroom
22 x 14, 1st
Bedroom
13 x 12, 1st
Bedroom
13 x 12, 1st
Bedroom
11 x 12, 1st
Home Office/Study
10 x 12, 1st

Exterior

Roof
Composition
Foundation
Slab
Private Pool
No
Exterior Type
Brick, Stone, Stucco
Lot Description
Subdivision Lot
Water Sewer
Public Sewer, Public Water
Front Door Face
Southeast
Exterior
Back Yard Fenced, Covered Patio/Deck, Sprinkler System, Subdivision Tennis Court

Extra details you may need to know

Dwelling Type
Free Standing
HOA Mandatory
Yes
List Type
Exclusive Right to Sell/Lease

Financial information

Financing Considered
Cash Sale, Conventional, FHA, VA
Other Fees
Yes / TBD
Maintenance Fee
Mandatory / $1464 / Annually
Tax Rate
3.28

Interior

Fireplace
1
Countertop
Quartz
Floors
Carpet, Tile
Bathroom Description
Full Secondary Bathroom Down, Half Bath, Primary Bath: Double Sinks, Primary Bath: Separate Shower, Primary Bath: Soaking Tub, Secondary Bath(s): Tub/Shower Combo
Bedroom Description
All Bedrooms Down,En-Suite Bath,Primary Bed - 1st Floor,Walk-In Closet
Kitchen Description
Island w/o Cooktop,Kitchen open to Family Room,Pantry,Walk-in Pantry
Room Description
Entry, Family Room, Home Office/Study, Kitchen/Dining Combo, Utility Room in House
Cooling
Central Electric
Heating
Central Gas
Connections
Electric Dryer Connections
Dishwasher
Yes
Disposal
Yes
Microwave
Yes
Oven
Single Oven
Range
Gas Cooktop
Energy Feature
Ceiling Fans, Digital Program Thermostat, Energy Star Appliances, Energy Star/CFL/LED Lights, High-Efficiency HVAC, Other Energy Features
Interior
Fire/Smoke Alarm, Formal Entry/Foyer, High Ceiling, Prewired for Alarm System

Lot Information

Lot Size
8,115 Sqft. /Other
loading
Disclaimer: Lot configuration and dimensions are estimates, not based on personal knowledge and come from a third party (Digital Map Products); therefore, you should not rely on the estimates and perform independent confirmation as to their accuracy
Ready to Sell your Home?
If you like this property and are also considering selling your current home now, you may find out how. Request your home selling analysis report featuring Recently Sold, Market Analysis, Home Valuations, and Market Update.
Start Selling your Home

Listing Broker

Information source

Houston Association of REALTORS®
Source last updated Apr 15, 2026 at 12:47 PM
Listing last updated Mar 26, 2026 at 04:58 AM
View website →

Estimate your mortgage payments

Create and estimate your monthly mortgage payment and property taxes based on past rates.

Estimated Monthly Payments

DOWN PAYMENT
Loan Term
$-----
$-----
Full Page
Presented by TimeValue Software ©2021
Principal & InterestTaxes30.4%69.6%
Listing TaxNumbers
Principal & Interest2,841
Taxes1,242
--------
-------- --------

Explore school information

Check out assigned and nearby schools along with their detailed ratings and essential information to help you make informed decisions.

Assigned schools

View nearby schools view nearby schools

Notice & Disclaimer
School information is computer generated and may not be accurate or current. Buyer must independently verify and confirm enrollment. Please contact the school district to determine the schools to which this property is zoned.
Copyright© 2026 , HOUSTON REALTORS® INFORMATION SERVICE, INC. All Rights Reserved. Data Not Verified/Guaranteed by MLS
Schedule a tour
Tomorrow
16
Apr
Fri
17
Apr
Sat
18
Apr
Sun
19
Apr
Other dates
Contact agent
Call Callback request

Schedule a Tour

Thu
16
Apr
Fri
17
Apr
Sat
18
Apr
Sun
19
Apr
Mon
20
Apr
Tue
21
Apr
Wed
22
Apr
Thu
23
Apr
Fri
24
Apr
Sat
25
Apr