loading

1714 Falcon Dr

Keller, TX 76248
Get Directions →
Just listedJust listed
5 Bedroom(s)
4 Full Bath(s)
3,652 Sqft
0.27 Lot Acres
Residential - Single Family

Audio narrative

Get full access to Premium Content

Premium Content such as Sold Prices, Property History Reports and Saved Searches.

Sign in to view Premium Content

Description

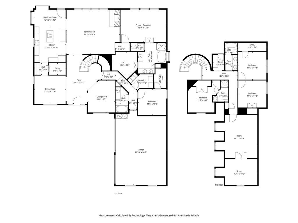
Situated on a large corner lot across from park & community pool, this spacious and character-filled home offers a rare blend of warmth, functionality, and timeless charm. A welcoming brick façade with mature trees creates inviting curb appeal, leading to an expansive interior designed for comfortable living and entertaining. This thoughtfully designed floor plan features 3 living areas, hardwood flooring, and abundant natural light. The grand 2 story foyer with staircase sets the tone, formal living and dining spaces ideal for gatherings. The main living area showcases soaring ceilings, a cozy fireplace, and walls of windows overlooking the backyard. The kitchen is generously sized with extensive cabinetry, center island, stainless double ovens, and a breakfast nook surrounded by windows perfect for everyday living. The adjoining family room offers seamless flow for entertaining, while unique architectural details and art niches throughout add character and charm. The private primary suite is located on the main level and features a spacious layout with a large walk-in closet offering built-in dresser with 6 drawers with shelving on both sides ideal for shoes or additional storage and ensuite bath complete with dual vanities, soaking tub, and separate shower. Additional bedrooms are well sized, with a flexible upstairs layout that includes multiple bedrooms, baths, and bonus living spaces ideal for a game room, media room, or home office, & a versatile nook has built-in desk with overhead shelving, ideal for a study space. Step outside to a covered patio and private backyard with mature trees, offering a peaceful setting for outdoor dining and relaxation. Ideally located near neighborhood amenities including Bloomfield pool and soccer fields, and just minutes from Sky Creek Ranch Golf Club, this home offers both convenience and community. A rare opportunity to own a home with incredible space, character, and potential in a sought-after Keller location.

MLS#
NTREIS-21244602
List Price
$675,000 ($185/Sqft.)
Listing Status
For Sale
Address
1714 Falcon Dr
City
Keller
State
TX
Zip Code
76248
County
Tarrant County
Subdivision
Bloomfield At Hidden Lakes
Legal Description
BLOOMFIELD AT HIDDEN LAKES BLOCK J LOT 8
Property Type
Residential - Single Family
Bedroom
5 Bedroom(s)
Bath
4 Full Bath(s)
Garages
3 / Attached,Oversized
Stories
2
Building Size
3,652 Sqft/Appraisal District
Architecture Style
Traditional
Year Built
1999 /Appraisal District
Lot Size
0.27 Lot Acres/Appraisal District
LP / Acre
$2,509,294 / Acre
Maintenance Fee
$788 / Annually

Rooms

Living
22 x 18, 1st
Living
13 x 11, 1st
Dining
13 x 12, 1st
Kitchen
15 x 13, 1st
Breakfast
13 x 7, 1st
Primary Bedroom
19 x 13, 1st
Bedroom
12 x 11, 2nd
Bedroom
12 x 11, 1st
Bedroom
13 x 13, 2nd
Bedroom
12 x 11, 2nd
Game Room
18 x 17, 2nd
Utility Room Desc
11 x 6, 1st

Interior

Number Of Living Area
4
Fireplace
1/Gas,Living Room
Floors
Carpet, Ceramic Tile, Wood
Cooling
Central Air, Zoned
Heating
Central, ENERGY STAR Qualified Equipment, ENERGY STAR/ACCA RSI Qualified Installation, Natural Gas, Zoned
Appliances
Dishwasher, Disposal, Electric Cooktop, Electric Oven, Electric Range, Microwave, Convection Oven, Double Oven
Security System
Smoke Detector(s)
Interior
Cable TV Available, Cathedral Ceiling(s), Chandelier, Double Vanity, High Speed Internet Available, Kitchen Island, Open Floorplan, Pantry, Sound System Wiring, Vaulted Ceiling(s), Walk-In Closet(s)

Exterior

Roof
Composition
Foundation
Slab
Private Pool
No
Exterior Type
Brick
Lot Description
Corner Lot, Landscaped, Lrg. Backyard Grass, Many Trees, Park View, Sprinkler System, Subdivision
Garage Size
21 X 31
Parking
Driveway, Garage Door Opener, Garage Faces Front, Oversized
Parking Space
Garage 3 / Carport 0 / Total Covered 3
Fencing
Metal,Wood
Porch
Covered,Front Porch
Utility
City Sewer,City Water,Individual Gas Meter,Individual Water Meter
Area Pool
Yes
Exterior
Covered Patio/Porch, Private Yard

Extra details you may need to know

Dwelling Type
Single Detached
Community Features
Community Pool,Park

Financial information

Maintenance Fee
$788/Annually
Maint Fee Includes
Full Use of Facilities,Management Fees

Lot Information

Lot Size
0.27 Lot Acres /Appraisal District
loading
Disclaimer: Lot configuration and dimensions are estimates, not based on personal knowledge and come from a third party (Digital Map Products); therefore, you should not rely on the estimates and perform independent confirmation as to their accuracy

Listing Broker

Information source

North Texas Real Estate Information Systems, Inc.
Source last updated Apr 22, 2026 at 04:36 PM
Listing last updated Apr 22, 2026 at 06:30 PM
View website →

Know the property tax history and market value

Cost/Sqft based on tax value

------------------------------
---------- ---------- ---------- ----------
---------- ---------- ---------- ----------
---------- ---------- ---------- ----------
---------- ---------- ---------- ----------
---------- ---------- ---------- ----------
---------- ---------- ---------- ----------

-------------

-------------
------------- -------------
------------- -------------
-------------------------- -------------
-------------------------- -------------
------------- -------------

-------------

-------------
------------- -------------
------------- -------------
------------- -------------
------------- -------------
------------- -------------

Estimate your mortgage payments

Create and estimate your monthly mortgage payment and property taxes based on past rates.

Estimated Monthly Payments

DOWN PAYMENT
Loan Term
$-----
$-----
Full Page
Presented by TimeValue Software ©2021
Principal & InterestTaxes30.4%69.6%
Listing TaxNumbers
Principal & Interest2,841
Taxes1,242
--------
-------- --------

Explore school information

Check out assigned and nearby schools along with their detailed ratings and essential information to help you make informed decisions.

Assigned schools

View nearby schools view nearby schools

Notice & Disclaimer
School information is computer generated and may not be accurate or current. Buyer must independently verify and confirm enrollment. Please contact the school district to determine the schools to which this property is zoned.
Copyright© 2026 , HOUSTON REALTORS® INFORMATION SERVICE, INC. All Rights Reserved. Data Not Verified/Guaranteed by MLS
Schedule a tour
Tomorrow
23
Apr
Fri
24
Apr
Sat
25
Apr
Sun
26
Apr
Other dates
Contact agent
Call

Schedule a Tour

Thu
23
Apr
Fri
24
Apr
Sat
25
Apr
Sun
26
Apr
Mon
27
Apr
Tue
28
Apr
Wed
29
Apr
Thu
30
Apr
Fri
01
May
Sat
02
May