loading

1013 Erin St U

Houston, TX 77009
Get Directions →
New constructionNew construction
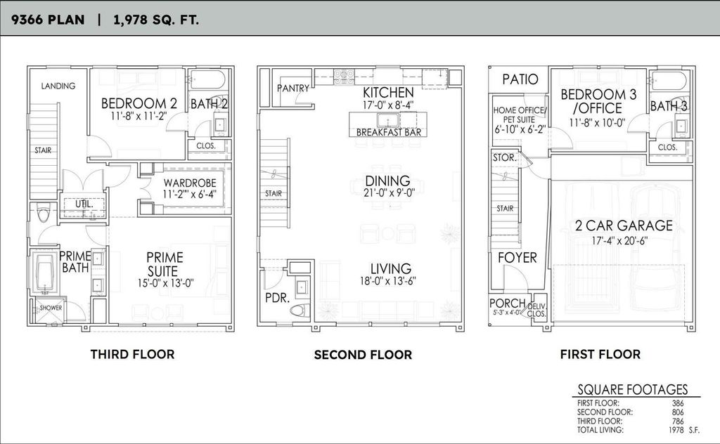
3 Bedroom(s)
3 Full & 1 Half Bath(s)
1,978 Sqft
1,421 Lot Sqft
Single-Family

Audio narrative

Open House
Friday, Apr 17 12:00 PM - 2:00 PM hide details ↓

Open House Activity

Friday, Apr 17, 2026
12:00 PM - 2:00 PM
Days
1
Hours
23
Minutes
33
Remind me when this Open House is set to begin.
Upcoming Open Houses
Don’t see any date that fits your schedule?
Schedule a Private Tour

Get full access to Premium Content

Premium Content such as Sold Prices, Property History Reports and Saved Searches.

Sign in to view Premium Content

Description

Seller May Contribute to Buyer Expenses. Explanation ↓

Welcome to Erin Park, a gated community featuring 23 beautifully designed homes, perfectly positioned just minutes from The Heights. Modern two-story and three-story homes are available, with four different floor plans to choose from. Homes come with a refrigerator and window blinds throughout. Here, your pets can enjoy the community dog park. You're just a short drive from the lively White Oak Music Hall, the social hotspot Woodlands Social, and the vibrant streets of Downtown Houston. The upcoming White Oak District, a 20,000-square-foot mixed-use commercial development, promises to enhance the neighborhood with additional dining, shopping, and entertainment options right down the street. Schedule your showing today!

MLS#
70791448
List Price
$349,990 ($177/Sqft.)
Listing Status
For Sale
Address
1013 Erin St U
Unit No.
U
City
Houston
State
TX
Zip Code
77009
County
Harris County
Legal Description
LT 21 BLK 1 ERIN PARK
Property Type
Single-Family
Bedroom
3 Bedroom(s)
Bath
3 Full & 1 Half Bath(s)
Garages
2 / Attached
Stories
3
Building Size
1,978 Sqft/Builder
Architecture Style
Contemporary/Modern,Other Style
Year Built
2025 /Builder
Lot Size
1,421 Sqft/Appraisal District
Maintenance Fee
$1,195 / Annually
Market Area

Rooms

Living
18 x 13, 2nd
Dining
21 x 9, 2nd
Kitchen
2nd
Primary Bedroom
15 x 13, 3rd
Bedroom
11 x 11, 3rd
Bedroom
11 x 10, 1st
Primary Bath
3rd
Bath
1st
Bath
3rd
Home Office/Study
1st
Utility Room Desc
3rd

Exterior

Roof
Composition
Foundation
Slab
Private Pool
No
Exterior Type
Other
Lot Description
Subdivision Lot
Garage Carport
Auto Driveway Gate,Auto Garage Door Opener
Water Sewer
Public Sewer, Public Water
Area Pool
No
Exterior
Back Green Space, Back Yard, Back Yard Fenced, Controlled Subdivision Access, Fully Fenced, Sprinkler System

Extra details you may need to know

Dwelling Type
Free Standing
HOA Mandatory
Yes
List Type
Exclusive Right to Sell/Lease

Financial information

Financing Considered
Affordable Housing Program (subject to conditions), Cash Sale, Conventional, FHA, Investor, Seller May Contribute
Other Fees
Yes / 125/mo / Water, Sewer, Trash
Maintenance Fee
Mandatory / $1195 / Annually
Maint Fee Includes
Common Grounds,Lawn Care,Limited Access Gates,Other
Taxes w/o Exemp
$1,171/2025
Tax Rate
2.1252

Interior

Countertop
Quartz
Floors
Carpet, Tile, Vinyl Plank
Bathroom Description
Full Secondary Bathroom Down, Half Bath, Primary Bath: Double Sinks, Primary Bath: Separate Shower, Primary Bath: Soaking Tub, Secondary Bath(s): Tub/Shower Combo
Bedroom Description
1 Bedroom Down - Not Primary BR,En-Suite Bath,Primary Bed - 3rd Floor,Split Plan,Walk-In Closet
Kitchen Description
Breakfast Bar,Instant Hot Water,Island w/o Cooktop,Kitchen open to Family Room,Pantry,Walk-in Pantry
Room Description
Entry, Home Office/Study, Living Area - 2nd Floor, Living/Dining Combo, Utility Room in House
Cooling
Central Electric, Zoned
Heating
Central Gas
Connections
Gas Dryer Connections, Washer Connections
Compactor
No
Dishwasher
Yes
Disposal
Yes
Ice Maker
No
Microwave
Yes
Oven
Gas Oven
Range
Gas Range
Energy Feature
Attic Vents, Digital Program Thermostat, Energy Star Appliances, Energy Star/CFL/LED Lights, Energy Star/Reflective Roof, HVAC>15 SEER, Insulated/Low-E windows, Insulation - Batt, Insulation - Blown Fiberglass, Radiant Attic Barrier, Tankless/On-Demand H2O Heater
Interior
2 Staircases, Fire/Smoke Alarm, Formal Entry/Foyer, High Ceiling, Prewired for Alarm System, Refrigerator Included, Split Level, Window Coverings

Lot Information

Lot Size
1,421 Sqft. /Appraisal District
loading
Disclaimer: Lot configuration and dimensions are estimates, not based on personal knowledge and come from a third party (Digital Map Products); therefore, you should not rely on the estimates and perform independent confirmation as to their accuracy
Ready to Sell your Home?
If you like this property and are also considering selling your current home now, you may find out how. Request your home selling analysis report featuring Recently Sold, Market Analysis, Home Valuations, and Market Update.
Start Selling your Home

Listing Broker

Information source

Houston Association of REALTORS®
Source last updated Apr 15, 2026 at 12:17 PM
Listing last updated Apr 14, 2026 at 12:27 PM
View website →

Know the property tax history and market value

Cost/Sqft based on tax value

------------------------------
---------- ---------- ---------- ----------
---------- ---------- ---------- ----------
---------- ---------- ---------- ----------
---------- ---------- ---------- ----------
---------- ---------- ---------- ----------
---------- ---------- ---------- ----------

-------------

-------------
------------- -------------
------------- -------------
-------------------------- -------------
-------------------------- -------------
------------- -------------

-------------

-------------
------------- -------------
------------- -------------
------------- -------------
------------- -------------
------------- -------------

Estimate your mortgage payments

Create and estimate your monthly mortgage payment and property taxes based on past rates.

Estimated Monthly Payments

DOWN PAYMENT
Loan Term
$-----
$-----
Full Page
Presented by TimeValue Software ©2021
Principal & InterestTaxes30.4%69.6%
Listing TaxNumbers
Principal & Interest2,841
Taxes1,242
--------
-------- --------

Explore school information

Check out assigned and nearby schools along with their detailed ratings and essential information to help you make informed decisions.

Assigned schools

View nearby schools view nearby schools

Notice & Disclaimer
School information is computer generated and may not be accurate or current. Buyer must independently verify and confirm enrollment. Please contact the school district to determine the schools to which this property is zoned.
Copyright© 2026 , HOUSTON REALTORS® INFORMATION SERVICE, INC. All Rights Reserved. Data Not Verified/Guaranteed by MLS
Schedule a tour
Tomorrow
16
Apr
Fri
17
Apr
Sat
18
Apr
Sun
19
Apr
Other dates
Contact agent
Call Callback request

Schedule a Tour

Thu
16
Apr
Fri
17
Apr
Sat
18
Apr
Sun
19
Apr
Mon
20
Apr
Tue
21
Apr
Wed
22
Apr
Thu
23
Apr
Fri
24
Apr
Sat
25
Apr