loading

1220 Hawthorne St

Houston, TX 77006
Get Directions →
7 Bedroom(s)
2 Full Bath(s)
4,000 Sqft
5,300 Lot Sqft
Single-Family

Audio narrative

Get full access to Premium Content

Premium Content such as Sold Prices, Property History Reports and Saved Searches.

Sign in to view Premium Content

Description

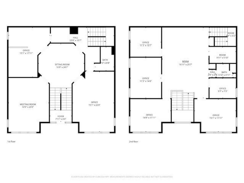
Rare Montrose investor opportunity featuring a free-standing income producing commercial zoned office building. Built in 1985, the three floors could be used independently or divided for different uses. UNrestricted with 10+ flexible office suites, several conference rooms, kitchen area. Ideal for a design firm, creatives, professional offices. Could also be remodeled to be used as a residential home. Beautiful light filled rooms perfect for client meetings and team gatherings. Offices are currently partially leased, providing immediate income with additional upside. 1930 home next door (sold separately) is also offered for sale and is a charming 1930s 3-bedroom, 2.5 bath HOUSE renovated in 2016, currently tenant occupied.

MLS#
9143099
List Price
$800,000 ($200/Sqft.)
Listing Status
For Sale
Address
1220 Hawthorne St
City
Houston
State
TX
Zip Code
77006
County
Harris County
Legal Description
LT 8 BLK 68 MONTROSE
Property Type
Single-Family
Bedroom
7 Bedroom(s)
Bath
2 Full Bath(s)
Stories
3
Building Size
4,000 Sqft/Seller
Architecture Style
Contemporary/Modern
Year Built
1985 /Appraisal District
Lot Size
5,300 Sqft/Appraisal District
Key Map©
493S
Market Area

Exterior

Roof
Composition
Foundation
Slab
Private Pool
No
Exterior Type
Stucco
Lot Description
Corner, Subdivision Lot
Water Sewer
Public Sewer, Public Water
Front Door Face
South

Extra details you may need to know

Dwelling Type
Free Standing
HOA Mandatory
No
List Type
Exclusive Right to Sell/Lease

Financial information

Other Fees
No
Maintenance Fee
No
Taxes w/o Exemp
$21,005/2025
Tax Rate
2.1252

Rooms

Kitchen
9 x 5, 3rd
Bedroom
15 x 21, 1st
Bedroom
17 x 16, 1st
Bedroom
11 x 12, 1st
Bedroom
15 x 15, 2nd
Bedroom
15 x 20, 2nd
Bedroom
14 x 11, 3rd
Bedroom
15 x 11, 3rd
Home Office/Study
15 x 11, 3rd
Home Office/Study
15 x 17, 2nd
Extra Room
11 x 14, 3rd

Interior

Floors
Carpet, Marble Floors, Wood
Cooling
Central Electric
Heating
Central Gas
Dishwasher
Yes
Oven
Electric Oven

Lot Information

Lot Size
5,300 Sqft. /Appraisal District
loading
Disclaimer: Lot configuration and dimensions are estimates, not based on personal knowledge and come from a third party (Digital Map Products); therefore, you should not rely on the estimates and perform independent confirmation as to their accuracy
Ready to Sell your Home?
If you like this property and are also considering selling your current home now, you may find out how. Request your home selling analysis report featuring Recently Sold, Market Analysis, Home Valuations, and Market Update.
Start Selling your Home

Listing Broker

Information source

Houston Association of REALTORS®
Source last updated Apr 15, 2026 at 12:07 PM
Listing last updated Mar 27, 2026 at 04:58 AM
View website →

Know the property tax history and market value

Cost/Sqft based on tax value

------------------------------
---------- ---------- ---------- ----------
---------- ---------- ---------- ----------
---------- ---------- ---------- ----------
---------- ---------- ---------- ----------
---------- ---------- ---------- ----------
---------- ---------- ---------- ----------

-------------

-------------
------------- -------------
------------- -------------
-------------------------- -------------
-------------------------- -------------
------------- -------------

-------------

-------------
------------- -------------
------------- -------------
------------- -------------
------------- -------------
------------- -------------

Estimate your mortgage payments

Create and estimate your monthly mortgage payment and property taxes based on past rates.

Estimated Monthly Payments

DOWN PAYMENT
Loan Term
$-----
$-----
Full Page
Presented by TimeValue Software ©2021
Principal & InterestTaxes30.4%69.6%
Listing TaxNumbers
Principal & Interest2,841
Taxes1,242
--------
-------- --------

Explore school information

Check out assigned and nearby schools along with their detailed ratings and essential information to help you make informed decisions.

Assigned schools

View nearby schools view nearby schools

Notice & Disclaimer
School information is computer generated and may not be accurate or current. Buyer must independently verify and confirm enrollment. Please contact the school district to determine the schools to which this property is zoned.
Copyright© 2026 , HOUSTON REALTORS® INFORMATION SERVICE, INC. All Rights Reserved. Data Not Verified/Guaranteed by MLS
Schedule a tour
Tomorrow
16
Apr
Fri
17
Apr
Sat
18
Apr
Sun
19
Apr
Other dates
Contact agent
Call

Schedule a Tour

Thu
16
Apr
Fri
17
Apr
Sat
18
Apr
Sun
19
Apr
Mon
20
Apr
Tue
21
Apr
Wed
22
Apr
Thu
23
Apr
Fri
24
Apr
Sat
25
Apr