loading

2403 Sunfire Lane

Pearland, TX 77584
Get Directions →
Sold
Sold
$285,001 - $325,000
Sold on December 02, 2021
4 Bedroom(s)
2 Full & 1 Half Bath(s)
2,556 Sqft
6,900 Lot Sqft
Single-Family

Sold Transaction

Stephanie Ray represented the buyer on this sold transaction on 12/02/2021

Get full access to Premium Content

Premium Content such as Sold Prices, Property History Reports and Saved Searches.

Sign in to view Premium Content

Description

Multiple Offers Received -- HIGHEST AND BEST, INCLUDING TERMS AND CONDITIONS ARE DUE BY 5PM ON SATURDAY, NOVEMBER 6TH Beautiful 4-bedroom 2.5 bath Pulte home in Sunrise Trails. Home is situated on a corner lot and offers a pool-sized yard with 2 car detached garage. Enter into the foyer with 2 story ceiling make your way through the formal dining room to the well-appointed kitchen with granite counters, a stainless appliance package, ample cabinet space and a breakfast bar. You will love how the open floorplan incorporates the living room, breakfast area and kitchen and the newly installed wood look tile flooring and fresh neutral paint palette. The 1st floor primary boasts a bay window and en suite bath with dual vanities, a soaking bathtub, separate walk-in shower and walk-in closet. Gameroom upstairs plus 3 additional bedrooms and one full bathroom. Conveniently located with easy access to I-45 and the Beltway. Home is ready for immediate move in.

MLS#
28559537
List Price
$325,000 ($127/Sqft.)
Sold Price Range
$285,001 - $325,000
Listing Status
Sold
Address
2403 Sunfire Lane
City
Pearland
State
TX
Zip Code
77584
County
Brazoria County
Legal Description
SUNRISE LAKES SEC 4 (A0721 & A0506) (PEARLAND) BLK 5 LOT 22
Property Type
Single-Family
Bedroom
4 Bedroom(s)
Bath
2 Full & 1 Half Bath(s)
Garages
2 / Attached
Stories
2
Architecture Style
Traditional
Year Built
2002 / Appraisal District
Building Size
2,556 Sqft/Appraisal District
Lot Size
6,900 Sqft./Appraisal District
Maintenance Fee
$450 / Annually
Market Area

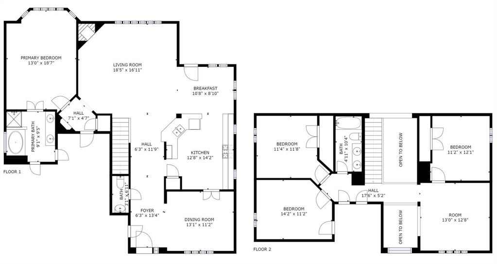
Rooms

Living
18 x 16, 1st
Dining
13 x 11, 1st
Kitchen
12 x 14, 1st
Breakfast
10 x 8, 1st
Primary Bedroom
13 x 18, 1st
Bedroom
11 x 12, 2nd
Bedroom
11 x 11, 2nd
Bedroom
14 x 11, 2nd
Primary Bath
9 x 9, 1st
Bath
3 x 6, 1st
Bath
4 x 10, 2nd
Game Room
13 x 12, 2nd

Exterior

Roof
Composition
Foundation
Slab
Private Pool
No
Exterior Type
Brick
Lot Description
Subdivision Lot
Water Sewer
Water District
Front Door Face
West
Unit Location
Subdivision Lot
Area Pool
Yes
Exterior
Back Yard Fenced, Fully Fenced, Sprinkler System

Extra details you may need to know

Dwelling Type
Free Standing
HOA Mandatory
Yes
List Type
Exclusive Right to Sell/Lease

Financial information

Financing Considered
Cash Sale, Conventional, FHA, VA
Other Fees
Yes / 350 / Transfer
Ownership
Full Ownership
Maintenance Fee
Mandatory / $450 / Annually
Taxes w/o Exemp
$6,224/2020
Tax Rate
2.91652

Interior

Fireplace
1/Gas Connections,Wood Burning Fireplace
Countertop
Granite
Floors
Tile
Bathroom Description
Half Bath, Primary Bath: Double Sinks, Secondary Bath(s): Double Sinks, Secondary Bath(s): Tub/Shower C
Bedroom Description
Primary Bed - 1st Floor,Walk-In Closet
Kitchen Description
Kitchen open to Family Room,Pantry,Pots/Pans Drawers
Room Description
Formal Dining,Formal Living,Gameroom Up
Cooling
Central Electric
Heating
Central Gas
Connections
Electric Dryer Connections, Gas Dryer Connections, Washer Connections
Compactor
No
Dishwasher
Yes
Disposal
No
Ice Maker
No
Microwave
Yes
Oven
Gas Oven, Single Oven
Range
Gas Range
Energy Feature
Ceiling Fans, Digital Program Thermostat, Energy Star/CFL/LED Lights, High-Efficiency HVAC, Radiant Attic Barrier
Interior
Alarm System - Owned, Crown Molding, Fire/Smoke Alarm, High Ceiling, Wired for Sound

Lot Information

Lot Size
6,900 Sqft. /Appraisal District
loading
Disclaimer: Lot configuration and dimensions are estimates, not based on personal knowledge and come from a third party (Digital Map Products); therefore, you should not rely on the estimates and perform independent confirmation as to their accuracy
Ready to Sell your Home?
If you like this property and are also considering selling your current home now, you may find out how. Request your home selling analysis report featuring Recently Sold, Market Analysis, Home Valuations, and Market Update.
Start Selling your Home

Information source

Houston Association of REALTORS®
Source last updated Apr 19, 2026 at 05:58 AM
Listing last updated Dec 02, 2021 at 02:56 PM
View website →

Know the property tax history and market value

Cost/Sqft based on tax value

------------------------------
---------- ---------- ---------- ----------
---------- ---------- ---------- ----------
---------- ---------- ---------- ----------
---------- ---------- ---------- ----------
---------- ---------- ---------- ----------
---------- ---------- ---------- ----------

-------------

-------------
------------- -------------
------------- -------------
-------------------------- -------------
-------------------------- -------------
------------- -------------

-------------

-------------
------------- -------------
------------- -------------
------------- -------------
------------- -------------
------------- -------------

Estimate your mortgage payments

Create and estimate your monthly mortgage payment and property taxes based on past rates.

Estimated Monthly Payments

DOWN PAYMENT
Loan Term
$-----
$-----
Full Page
Presented by TimeValue Software ©2021
Principal & InterestTaxes30.4%69.6%
Listing TaxNumbers
Principal & Interest2,841
Taxes1,242
--------
-------- --------

Explore school information

Check out assigned and nearby schools along with their detailed ratings and essential information to help you make informed decisions.

Assigned schools

View nearby schools view nearby schools

Notice & Disclaimer
School information is computer generated and may not be accurate or current. Buyer must independently verify and confirm enrollment. Please contact the school district to determine the schools to which this property is zoned.

Soundscore

loading
Copyright© 2026 , HOUSTON REALTORS® INFORMATION SERVICE, INC. All Rights Reserved. Data Not Verified/Guaranteed by MLS
Contact agent
Call Callback request