loading

241 S Preston Rd

Prosper, TX 75078
Get Directions →
Just listedJust listed
4.20 Lot Acres
Land / Unimproved Land

Audio narrative

Get full access to Premium Content

Premium Content such as Sold Prices, Property History Reports and Saved Searches.

Sign in to view Premium Content

Description

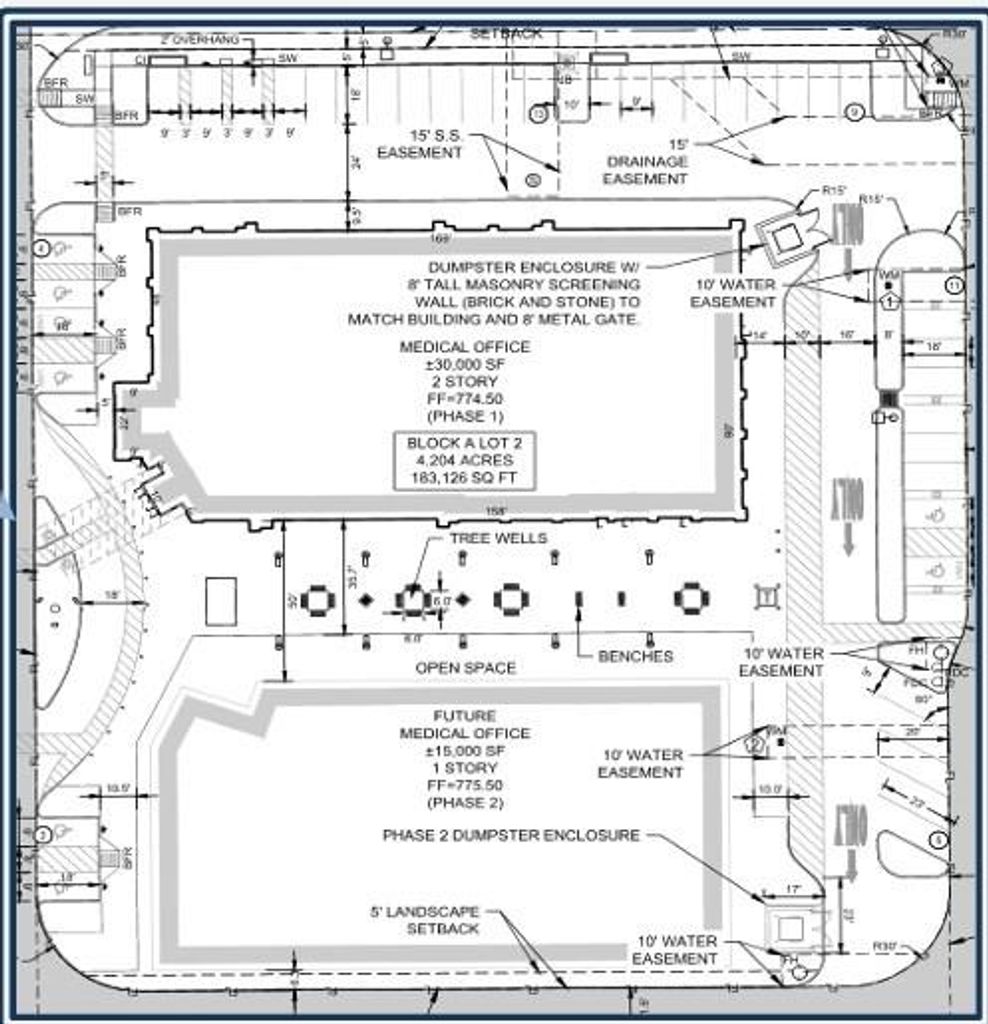
Rare shovel-ready 4.204-acre pad site in the heart of Prosper Town Center, positioned for immediate medical office or surgery center development. Approved plans in place for a ±30,000 SF two-story Medical Office Building (Phase 1) and ±15,000 SF Surgery Center (Phase 2), with full architectural elevations, civil engineering, and site work designed and permit-ready. Block A, Lot 2 of Prosper Town Center Phase VI (183,141 SF). Strategically located just east of N. Preston Road (TX-289) with 42,872 VPD, immediately adjacent to CVS Pharmacy, Tribute Senior Living (assisted living & memory care), and surrounding Class A professional office. Less than one mile from The Gates of Prosper (Walmart, Dick's, TJ Maxx, Ross, Burlington, DSW, Kohl's, HomeGoods) and within walking distance of Reynolds Middle School and Prosper High School. Located in one of the fastest-growing affluent submarkets in North Texas. Prosper population grew 50% from 2020-2024 to 42,598 residents, with a median household income of $198,632 and median home value of $886,000 — demographics that strongly support specialty medical, dental, surgical, and ancillary healthcare uses. All utilities, easements, and access in place per recorded ALTA survey. Zone X (outside 0.2% floodplain). Plans, survey, civil drawings, and full due diligence package available upon request and execution of CA. Sale Price: $4,500,000 ($24.60 PSF).

MLS#
NTREIS-21249611
List Price
$4,500,000
Listing Status
For Sale
Address
241 S Preston Rd
City
Prosper
State
TX
Zip Code
75078
County
Collin County
Subdivision
Prosper Town Center Ph VI
Legal Description
PROSPER TOWN CENTER PHASE VI (CPR), BLK A, LO
Property Type
Land / Unimproved Land
Lot Size
4.20 Lot Acres/Appraisal District
LP / Acre
$1,070,409 / Acre
Road Frontage
No Road Frontage

Exterior

Lot Description
Acreage, Level
Easements
Utilities
Utility
City Sewer,City Water,Electricity Available,See Remarks
Road Surface
None

Extra details you may need to know

Lake Pump
No

Lot Information

Lot Size
4.20 Lot Acres /Appraisal District
loading
Disclaimer: Lot configuration and dimensions are estimates, not based on personal knowledge and come from a third party (Digital Map Products); therefore, you should not rely on the estimates and perform independent confirmation as to their accuracy
Ready to Sell your Home?
If you like this property and are also considering selling your current home now, you may find out how. Request your home selling analysis report featuring Recently Sold, Market Analysis, Home Valuations, and Market Update.
Start Selling your Home

Listing Broker

Information source

North Texas Real Estate Information Systems, Inc.
Source last updated Apr 24, 2026 at 06:48 AM
Listing last updated Apr 24, 2026 at 11:38 AM
View website →

Know the property tax history and market value

Cost/Sqft based on tax value

------------------------------
---------- ---------- ---------- ----------
---------- ---------- ---------- ----------
---------- ---------- ---------- ----------
---------- ---------- ---------- ----------
---------- ---------- ---------- ----------
---------- ---------- ---------- ----------

-------------

-------------
------------- -------------
------------- -------------
-------------------------- -------------
-------------------------- -------------
------------- -------------

-------------

-------------
------------- -------------
------------- -------------
------------- -------------
------------- -------------
------------- -------------

Estimate your mortgage payments

Create and estimate your monthly mortgage payment and property taxes based on past rates.

Estimated Monthly Payments

DOWN PAYMENT
Loan Term
$-----
$-----
Full Page
Presented by TimeValue Software ©2021
Principal & InterestTaxes30.4%69.6%
Listing TaxNumbers
Principal & Interest2,841
Taxes1,242
--------
-------- --------

Explore school information

Check out assigned and nearby schools along with their detailed ratings and essential information to help you make informed decisions.

Assigned schools

View nearby schools view nearby schools

Notice & Disclaimer
School information is computer generated and may not be accurate or current. Buyer must independently verify and confirm enrollment. Please contact the school district to determine the schools to which this property is zoned.
Copyright© 2026 , HOUSTON REALTORS® INFORMATION SERVICE, INC. All Rights Reserved. Data Not Verified/Guaranteed by MLS
Schedule a tour
Tomorrow
25
Apr
Sun
26
Apr
Mon
27
Apr
Tue
28
Apr
Other dates
Contact agent
Call

Schedule a Tour

Sat
25
Apr
Sun
26
Apr
Mon
27
Apr
Tue
28
Apr
Wed
29
Apr
Thu
30
Apr
Fri
01
May
Sat
02
May
Sun
03
May
Mon
04
May