loading

328 Ice Shore Trl

Dayton, TX 77535
Get Directions →
New constructionNew construction
Just listedJust listed
4 Bedroom(s)
2 Full Bath(s)
2,263 Sqft
Single-Family

Audio narrative

Get full access to Premium Content

Premium Content such as Sold Prices, Property History Reports and Saved Searches.

Sign in to view Premium Content

Description

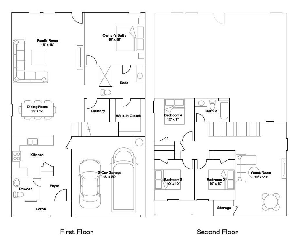
NEW! Lennar Watermill Collection "Sherman" Plan with Brick Elevation J4 in River Ranch! This new two-story home features a luxurious owner’s suite on the first level, offering a tranquil retreat with a full bathroom and walk-in closet. A nearby open-concept layout encourages seamless transitions and multitasking between the kitchen, living and dining areas. On the second floor, a versatile game room provides a convenient shared living area near three additional bedrooms.

MLS#
30560826
List Price
$293,990 ($130/Sqft.)
Listing Status
For Sale
Address
328 Ice Shore Trl
City
Dayton
State
TX
Zip Code
77535
County
Liberty County
Subdivision
River Ranch
Legal Description
SEC 0003 BLK 005 LOT 005
Property Type
Single-Family
Bedroom
4 Bedroom(s)
Bath
2 Full Bath(s)
Garages
2 / Attached
Stories
2
Building Size
2,263 Sqft/Builder
Architecture Style
Traditional
Year Built
2026 /Builder
Maintenance Fee
$1,350 / Annually
Market Area

Rooms

Family Room
18 x 18, 1st
Dining
15 x 12, 1st
Kitchen
1st
Primary Bedroom
15 x 13, 1st
Bedroom
10 x 10, 2nd
Bedroom
10 x 10, 2nd
Bedroom
10 x 11, 2nd
Game Room
13 x 20, 2nd

Exterior

Roof
Composition
Foundation
Slab
Private Pool
No
Exterior Type
Brick, Cement Board
Lot Description
Subdivision Lot
Water Sewer
Other Water/Sewer

Extra details you may need to know

Dwelling Type
Free Standing
HOA Mandatory
Yes
List Type
Exclusive Right to Sell/Lease

Financial information

Other Fees
No
Maintenance Fee
Mandatory / $1350 / Annually
Tax Rate
3.02

Interior

Cooling
Central Electric
Heating
Central Gas

Lot Information

Lot Size
0 Sqft. /Appraisal District
loading
Disclaimer: Lot configuration and dimensions are estimates, not based on personal knowledge and come from a third party (Digital Map Products); therefore, you should not rely on the estimates and perform independent confirmation as to their accuracy
Ready to Sell your Home?
If you like this property and are also considering selling your current home now, you may find out how. Request your home selling analysis report featuring Recently Sold, Market Analysis, Home Valuations, and Market Update.
Start Selling your Home

Information source

Houston Association of REALTORS®
Source last updated Apr 16, 2026 at 02:07 PM
Listing last updated Apr 16, 2026 at 01:27 PM
View website →

Know the property tax history and market value

Cost/Sqft based on tax value

------------------------------
---------- ---------- ---------- ----------
---------- ---------- ---------- ----------
---------- ---------- ---------- ----------
---------- ---------- ---------- ----------
---------- ---------- ---------- ----------
---------- ---------- ---------- ----------

-------------

-------------
------------- -------------
------------- -------------
-------------------------- -------------
-------------------------- -------------
------------- -------------

-------------

-------------
------------- -------------
------------- -------------
------------- -------------
------------- -------------
------------- -------------

Estimate your mortgage payments

Create and estimate your monthly mortgage payment and property taxes based on past rates.

Estimated Monthly Payments

DOWN PAYMENT
Loan Term
$-----
$-----
Full Page
Presented by TimeValue Software ©2021
Principal & InterestTaxes30.4%69.6%
Listing TaxNumbers
Principal & Interest2,841
Taxes1,242
--------
-------- --------

Explore school information

Check out assigned and nearby schools along with their detailed ratings and essential information to help you make informed decisions.

Assigned schools

View nearby schools view nearby schools

Notice & Disclaimer
School information is computer generated and may not be accurate or current. Buyer must independently verify and confirm enrollment. Please contact the school district to determine the schools to which this property is zoned.
Copyright© 2026 , HOUSTON REALTORS® INFORMATION SERVICE, INC. All Rights Reserved. Data Not Verified/Guaranteed by MLS
Schedule a tour
Tomorrow
17
Apr
Sat
18
Apr
Sun
19
Apr
Mon
20
Apr
Other dates
Contact agent
Call Callback request

Schedule a Tour

Fri
17
Apr
Sat
18
Apr
Sun
19
Apr
Mon
20
Apr
Tue
21
Apr
Wed
22
Apr
Thu
23
Apr
Fri
24
Apr
Sat
25
Apr
Sun
26
Apr