loading

14136 Danesdale Dr

Pilot Point, TX 76258
Get Directions →
Just listedJust listed
3 Bedroom(s)
2 Full Bath(s)
1,586 Sqft
0.11 Lot Acres
Residential - Single Family

Audio narrative

Get full access to Premium Content

Premium Content such as Sold Prices, Property History Reports and Saved Searches.

Sign in to view Premium Content

Description

Welcome to 14136 Danesdale Drive, a beautifully maintained home offering comfort, style, and thoughtful upgrades throughout. This cute, warm, and cozy home is inviting from the moment you walk in. The spacious kitchen is a standout feature, complete with a large island and refrigerator—perfect for everyday living and entertaining. The primary suite offers a relaxing retreat with dual sinks, a walk-in shower, and a charming bay window that fills the space with natural light. Step outside to enjoy the nicely landscaped curb appeal and a fenced backyard featuring an open patio area, ideal for gatherings or quiet evenings at home. The epoxy-coated garage floor adds both durability and a polished finish. Conveniently located just minutes from Lake Ray Roberts and the North Dallas Tollway, with easy access to shopping, dining, and everyday conveniences. Perfect for first-time homebuyers, those looking to downsize, or retirees seeking a low-maintenance lifestyle, this move-in ready home has been well cared for and offers the perfect blend of functionality and charm. A must-see! Looks like a model home!

MLS#
NTREIS-21240586
List Price
$289,900 ($183/Sqft.)
Listing Status
For Sale
Address
14136 Danesdale Dr
City
Pilot Point
State
TX
Zip Code
76258
County
Denton County
Subdivision
Mobberly Farms Ph 1
Legal Description
MOBBERLY FARMS PHASE 1 BLK D LOT 15
Property Type
Residential - Single Family
Bedroom
3 Bedroom(s)
Bath
2 Full Bath(s)
Garages
2 / Attached
Stories
1
Building Size
1,586 Sqft/Appraisal District
Architecture Style
Traditional
Year Built
2022 /Appraisal District
Lot Size
0.11 Lot Acres/ASSESSOR
Maintenance Fee
$800 / Annually

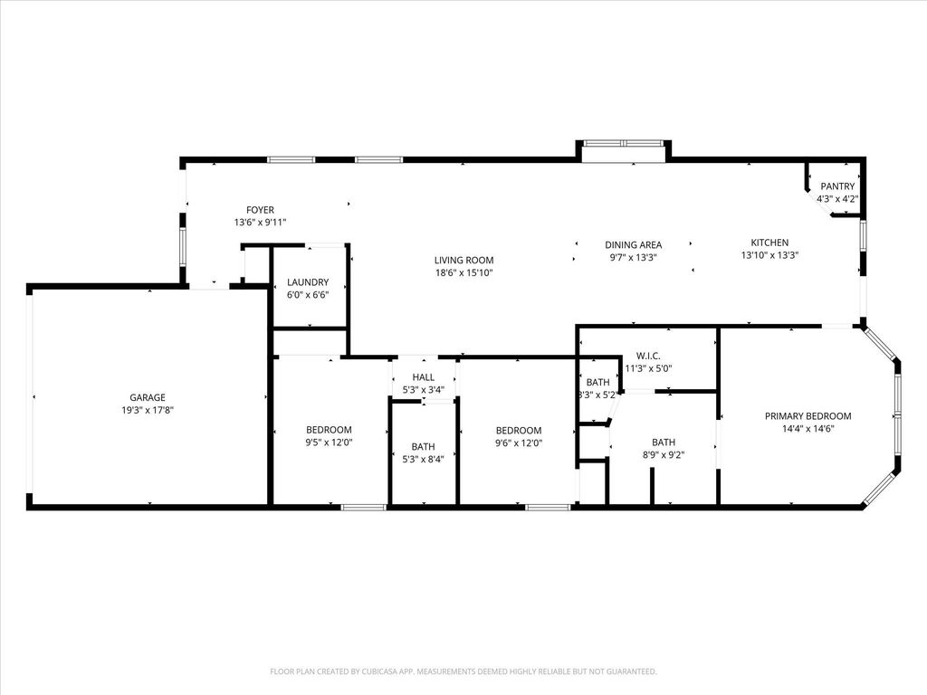
Rooms

Living
19 x 16, 1st
Dining
13 x 10, 1st
Kitchen
14 x 13, 1st
Primary Bedroom
14 x 15, 1st
Bedroom
12 x 10, 1st
Bedroom
12 x 10, 1st

Interior

Number Of Living Area
1
Floors
Carpet, Ceramic Tile
Cooling
Central Air
Heating
Central, Natural Gas
Window
Window Coverings
Appliances
Dishwasher, Disposal, Electric Range, Microwave, Refrigerator, Tankless Water Heater
Security System
Smoke Detector(s)
Interior
Decorative Lighting, Eat-in Kitchen, Flat Screen Wiring, Granite Counters, High Speed Internet Available, Kitchen Island, Open Floorplan, Pantry, Walk-In Closet(s)

Exterior

Roof
Composition
Foundation
Slab
Private Pool
No
Exterior Type
Brick
Lot Description
Landscaped, Sprinkler System, Subdivision
Garage Size
20 X 19
Parking
Driveway, Epoxy Flooring, Garage Door Opener, Garage Faces Front
Parking Space
Garage 2 / Carport 0 / Total Covered 2
Fencing
Back Yard,Fenced,Wood
Porch
Covered,Front Porch,Patio
Utility
All Weather Road,City Sewer,City Water,Curbs,Sidewalk,Underground Utilities
Area Pool
Yes
Exterior
Rain Gutters

Extra details you may need to know

Dwelling Type
Single Detached
Community Features
Club House,Community Pool,Park,Playground

Financial information

Maintenance Fee
$800/Annually
Maint Fee Includes
Full Use of Facilities,Management Fees

Lot Information

Lot Size
0.11 Lot Acres /ASSESSOR
loading
Disclaimer: Lot configuration and dimensions are estimates, not based on personal knowledge and come from a third party (Digital Map Products); therefore, you should not rely on the estimates and perform independent confirmation as to their accuracy
Ready to Sell your Home?
If you like this property and are also considering selling your current home now, you may find out how. Request your home selling analysis report featuring Recently Sold, Market Analysis, Home Valuations, and Market Update.
Start Selling your Home

Information source

North Texas Real Estate Information Systems, Inc.
Source last updated Apr 18, 2026 at 07:18 AM
Listing last updated Apr 18, 2026 at 09:27 AM
View website →

Know the property tax history and market value

Cost/Sqft based on tax value

------------------------------
---------- ---------- ---------- ----------
---------- ---------- ---------- ----------
---------- ---------- ---------- ----------
---------- ---------- ---------- ----------
---------- ---------- ---------- ----------
---------- ---------- ---------- ----------

-------------

-------------
------------- -------------
------------- -------------
-------------------------- -------------
-------------------------- -------------
------------- -------------

-------------

-------------
------------- -------------
------------- -------------
------------- -------------
------------- -------------
------------- -------------

Estimate your mortgage payments

Create and estimate your monthly mortgage payment and property taxes based on past rates.

Estimated Monthly Payments

DOWN PAYMENT
Loan Term
$-----
$-----
Full Page
Presented by TimeValue Software ©2021
Principal & InterestTaxes30.4%69.6%
Listing TaxNumbers
Principal & Interest2,841
Taxes1,242
--------
-------- --------

Explore school information

Check out assigned and nearby schools along with their detailed ratings and essential information to help you make informed decisions.

Assigned schools

View nearby schools view nearby schools

Notice & Disclaimer
School information is computer generated and may not be accurate or current. Buyer must independently verify and confirm enrollment. Please contact the school district to determine the schools to which this property is zoned.
Copyright© 2026 , HOUSTON REALTORS® INFORMATION SERVICE, INC. All Rights Reserved. Data Not Verified/Guaranteed by MLS
Schedule a tour
Tomorrow
19
Apr
Mon
20
Apr
Tue
21
Apr
Wed
22
Apr
Other dates
Contact agent
Call

Schedule a Tour

Sun
19
Apr
Mon
20
Apr
Tue
21
Apr
Wed
22
Apr
Thu
23
Apr
Fri
24
Apr
Sat
25
Apr
Sun
26
Apr
Mon
27
Apr
Tue
28
Apr