loading

20476 Sullivan Rd

New Caney, TX 77357
Get Directions →
3 Bedroom(s)
3 Full Bath(s)
3,671 Sqft
6.18 Lot Acres
Single-Family

Audio narrative

Get full access to Premium Content

Premium Content such as Sold Prices, Property History Reports and Saved Searches.

Sign in to view Premium Content

Description

Welcome to your private slice of Texas paradise! Escape to your own private retreat with this 3-bedroom, 3-bath barndominium on over 6 unrestricted acres! Enjoy peaceful country living with no restrictions while still being just minutes from shopping and dining. The property features a pond, RV hookup, and plenty of space for animals, hobbies, or future expansion. A separate front building currently used as an office offers endless potential—convert it into guest quarters, rental income, or a business space. Private, versatile, and full of opportunity, this property truly has it all!

MLS#
49186627
List Price
$629,500 ($171/Sqft.)
Listing Status
For Sale
Address
20476 Sullivan Rd
City
New Caney
State
TX
Zip Code
77357
County
Montgomery County
Subdivision
N/A
Legal Description
A0193 - EBERLEY JACOB, TRACT 7-A, 9-B, ACRES 6.18
Property Type
Single-Family
Bedroom
3 Bedroom(s)
Bath
3 Full Bath(s)
Stories
2
Building Size
3,671 Sqft/Appraisal
Architecture Style
Barndominium
Year Built
2005 /Appraisal District
Lot Size
6.18 Lot Acres/Appraisal District
LP / Acre
$101,861 / Acre
Key Map©
257N
Market Area

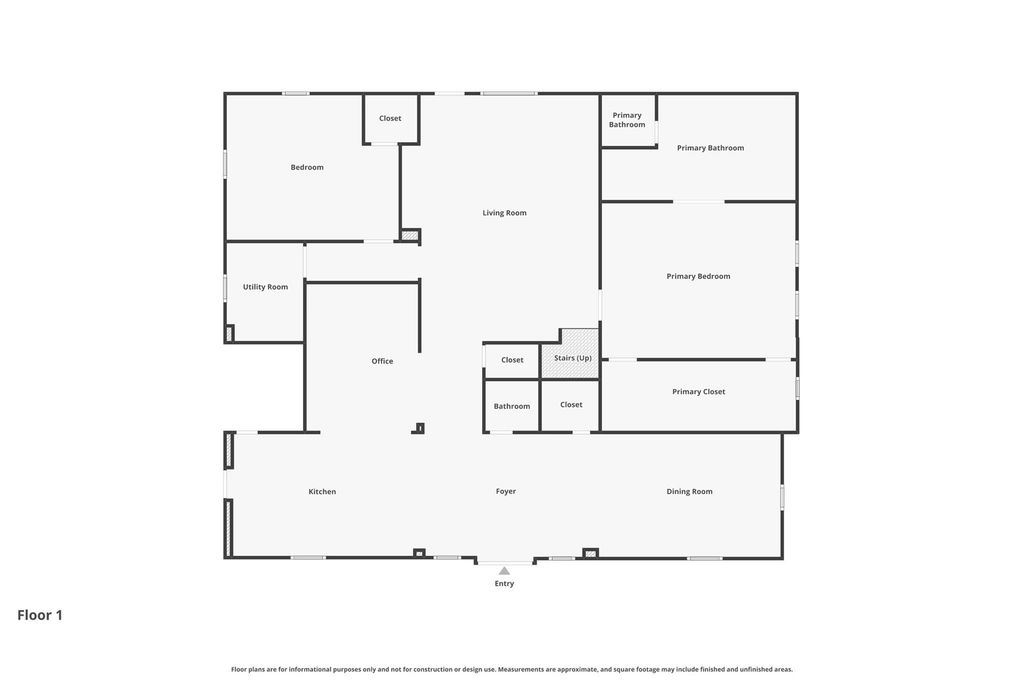
Rooms

Family Room
25 x 18, 1st
Dining
27 x 13, 1st
Kitchen
13 x 20, 1st
Breakfast
12 x 13, 1st
Primary Bedroom
16 x 20, 1st
Bedroom
14 x 17, 1st
Bedroom
18 x 18, 2nd
Primary Bath
11 x 16, 1st
Home Office/Study
12 x 15, 1st
Extra Room
18 x 6, 2nd

Exterior

Roof
Metal
Foundation
Slab
Private Pool
No
Exterior Type
Other
Lot Description
Cleared, Waterfront, Wooded
Water Amenity
Pond
Controlled Access
Driveway Gate
Water Sewer
Public Sewer
Exterior
Back Yard, Back Yard Fenced, Fully Fenced

Extra details you may need to know

Dwelling Type
Free Standing
HOA Mandatory
No
List Type
Exclusive Right to Sell/Lease

Financial information

Financing Considered
Cash Sale, Conventional, FHA
Other Fees
No
Maintenance Fee
No
Taxes w/o Exemp
$9,773/2025
Tax Rate
2.3105

Interior

Floors
Carpet, Concrete
Bathroom Description
Primary Bath: Double Sinks
Bedroom Description
2 Bedrooms Down,1 Bedroom Up,En-Suite Bath,Primary Bed - 1st Floor,Walk-In Closet
Kitchen Description
Breakfast Bar
Room Description
Family Room, Home Office/Study, Kitchen/Dining Combo, Living Area - 1st Floor, Utility Room in House
Cooling
Central Electric
Heating
Propane
Compactor
No
Dishwasher
Yes
Disposal
Yes
Ice Maker
No
Microwave
Yes
Oven
Gas Oven
Range
Freestanding Range
Energy Feature
Ceiling Fans
Interior
High Ceiling, Refrigerator Included

Lot Information

Lot Size
6.18 Lot Acres /Appraisal District
loading
Disclaimer: Lot configuration and dimensions are estimates, not based on personal knowledge and come from a third party (Digital Map Products); therefore, you should not rely on the estimates and perform independent confirmation as to their accuracy
Ready to Sell your Home?
If you like this property and are also considering selling your current home now, you may find out how. Request your home selling analysis report featuring Recently Sold, Market Analysis, Home Valuations, and Market Update.
Start Selling your Home

Information source

Houston Association of REALTORS®
Source last updated Apr 15, 2026 at 12:07 PM
Listing last updated Apr 04, 2026 at 10:26 PM
View website →

Know the property tax history and market value

Cost/Sqft based on tax value

------------------------------
---------- ---------- ---------- ----------
---------- ---------- ---------- ----------
---------- ---------- ---------- ----------
---------- ---------- ---------- ----------
---------- ---------- ---------- ----------
---------- ---------- ---------- ----------

-------------

-------------
------------- -------------
------------- -------------
-------------------------- -------------
-------------------------- -------------
------------- -------------

-------------

-------------
------------- -------------
------------- -------------
------------- -------------
------------- -------------
------------- -------------

Estimate your mortgage payments

Create and estimate your monthly mortgage payment and property taxes based on past rates.

Estimated Monthly Payments

DOWN PAYMENT
Loan Term
$-----
$-----
Full Page
Presented by TimeValue Software ©2021
Principal & InterestTaxes30.4%69.6%
Listing TaxNumbers
Principal & Interest2,841
Taxes1,242
--------
-------- --------

Explore school information

Check out assigned and nearby schools along with their detailed ratings and essential information to help you make informed decisions.

Assigned schools

View nearby schools view nearby schools

Notice & Disclaimer
School information is computer generated and may not be accurate or current. Buyer must independently verify and confirm enrollment. Please contact the school district to determine the schools to which this property is zoned.
Copyright© 2026 , HOUSTON REALTORS® INFORMATION SERVICE, INC. All Rights Reserved. Data Not Verified/Guaranteed by MLS
Schedule a tour
Tomorrow
16
Apr
Fri
17
Apr
Sat
18
Apr
Sun
19
Apr
Other dates
Contact agent
Call Callback request

Schedule a Tour

Thu
16
Apr
Fri
17
Apr
Sat
18
Apr
Sun
19
Apr
Mon
20
Apr
Tue
21
Apr
Wed
22
Apr
Thu
23
Apr
Fri
24
Apr
Sat
25
Apr