loading

18 Little John Ln

Conroe, TX 77301
Get Directions →
Sold
Foreclosure
Sold
$160,001 - $185,000
Sold on June 20, 2025
3 Bedroom(s)
2 Full Bath(s)
2,118 Sqft
11,038 Lot Sqft
Single-Family

Get full access to Premium Content

Premium Content such as Sold Prices, Property History Reports and Saved Searches.

Sign in to view Premium Content

Description

This charming 3 bedroom, 2 bathroom home is located in a highly sought-after community and features spacious living areas, an inviting layout, and a generous backyard perfect for relaxation and outdoor entertaining. With a thoughtful floor plan, including a large primary suite and two additional well-sized bedrooms, this home offers both comfort and functionality. The property provides an excellent canvas to personalize and create your ideal living space, all within a welcoming neighborhood known for its amenities, schools, and community atmosphere.

MLS#
80808364
List Price
$179,900 ($85/Sqft.)
Sold Price Range
$160,001 - $185,000
Listing Status
Sold
Address
18 Little John Ln
City
Conroe
State
TX
Zip Code
77301
County
Montgomery County
Legal Description
SHERWOOD FOREST, BLOCK 1, LOT 5
Property Type
Single-Family
Bedroom
3 Bedroom(s)
Bath
2 Full Bath(s)
Garages
2 / Attached
Stories
1
Architecture Style
Traditional
Year Built
1962 / Appraisal District
Building Size
2,118 Sqft/Appraisal District
Lot Size
11,038 Sqft./Appraisal District
Key Map©
157U
Market Area

Exterior

Roof
Composition
Foundation
Slab
Private Pool
No
Exterior Type
Brick
Lot Description
Subdivision Lot
Water Sewer
Public Sewer, Public Water

Extra details you may need to know

Dwelling Type
Free Standing
HOA Mandatory
No
List Type
Exclusive Right to Sell/Lease

Financial information

Financing Considered
Cash Sale, Conventional, Investor
Other Fees
No
Maintenance Fee
No
Taxes w/o Exemp
$3,951/2024
Tax Rate
1.9131

Interior

Fireplace
1
Cooling
Central Electric
Heating
Central Gas

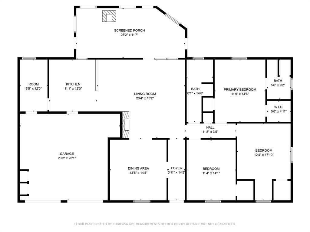
Rooms

Primary Bedroom
11'9" x 14'6", 1st
Bedroom
11'4" x 14'1", 1st
Bedroom
12'4" x 17'10", 1st

Lot Information

Lot Size
11,038 Sqft. /Appraisal District
loading
Disclaimer: Lot configuration and dimensions are estimates, not based on personal knowledge and come from a third party (Digital Map Products); therefore, you should not rely on the estimates and perform independent confirmation as to their accuracy

Information source

Houston Association of REALTORS®
Source last updated Apr 20, 2026 at 11:47 PM
Listing last updated Jun 20, 2025 at 01:57 PM
View website →

Know the property tax history and market value

Cost/Sqft based on tax value

------------------------------
---------- ---------- ---------- ----------
---------- ---------- ---------- ----------
---------- ---------- ---------- ----------
---------- ---------- ---------- ----------
---------- ---------- ---------- ----------
---------- ---------- ---------- ----------

-------------

-------------
------------- -------------
------------- -------------
-------------------------- -------------
-------------------------- -------------
------------- -------------

-------------

-------------
------------- -------------
------------- -------------
------------- -------------
------------- -------------
------------- -------------

Estimate your mortgage payments

Create and estimate your monthly mortgage payment and property taxes based on past rates.

Estimated Monthly Payments

DOWN PAYMENT
Loan Term
$-----
$-----
Full Page
Presented by TimeValue Software ©2021
Principal & InterestTaxes30.4%69.6%
Listing TaxNumbers
Principal & Interest2,841
Taxes1,242
--------
-------- --------

Explore school information

Check out assigned and nearby schools along with their detailed ratings and essential information to help you make informed decisions.

Assigned schools

View nearby schools view nearby schools

Notice & Disclaimer
School information is computer generated and may not be accurate or current. Buyer must independently verify and confirm enrollment. Please contact the school district to determine the schools to which this property is zoned.
Copyright© 2026 , HOUSTON REALTORS® INFORMATION SERVICE, INC. All Rights Reserved. Data Not Verified/Guaranteed by MLS
Contact agent
Call