4
Bedroom(s)
3 Full & 1 Half Bath(s)
2,876 Sqft
267 (m²)
6,774 Lot Sqft
629 Lot (m²)
Rental - Single Family Detached
Audio narrative 
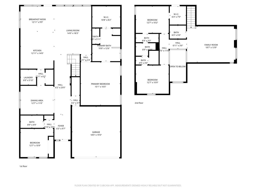
10519 Forfar Ln is listed for rent at $ 3,250. The Rental - Single Family Detached property has 4 bedrooms, 3 Full Bathrooms, 1 Half Bathroom, 2876 square feet and was built in 2019. The lot size is 6774 Square feet. ##BR##Stunning 2-story Lennar Wi-Fi CERTIFIED Smart Home. Spacious floor plan offers 4 bedrooms and 3 and 1/2 baths, with 2 BR on the first floor and game room and 2 BR upstairs . Zoned to the highly-regarded Fort Bend Independent School District (FBISD). Chef’s kitchen is a highlight, featuring a large island, granite countertops, 36’’ designer cabinets, and a full suite of stainless steel appliances. Luxurious master suite boasts an elegant, oversized walk-in closet and a spa-like bathroom with a separate shower and soaking tub. Enjoy a covered patio for outdoor relaxation, with extensive tile floors, faux wood blinds, and ceiling fans throughout. Benefit from a pre-installed solar panel system that helps stabilize and reduce monthly overhead. Home is also highly energy-efficient with a 16 SEER HVAC system and radiant barrier roof decking. The property is conveniently located near HEB, a variety of restaurants, and other shopping areas.
Be notified of upcoming
Open Houses for this property
Description
Stunning 2-story Lennar Wi-Fi CERTIFIED Smart Home. Spacious floor plan offers 4 bedrooms and 3 & 1/2 baths, with 2 BR on the first floor and game room and 2 BR upstairs . Zoned to the highly-regarded Fort Bend Independent School District (FBISD). Chef's kitchen is a highlight, featuring a large island, granite countertops, 36'' designer cabinets, and a full suite of stainless steel appliances. Luxurious master suite boasts an elegant, oversized walk-in closet and a spa-like bathroom with a separate shower & soaking tub. Enjoy a covered patio for outdoor relaxation, with extensive tile floors, faux wood blinds, and ceiling fans throughout. Benefit from a pre-installed solar panel system that helps stabilize and reduce monthly overhead. Home is also highly energy-efficient with a 16 SEER HVAC system and radiant barrier roof decking. The property is conveniently located near HEB, a variety of restaurants, and other shopping areas.
ALIANA SEC 50, BLOCK 4, LOT 12
Rental - Single Family Detached
2,876 Sqft267 (m²)./Appraisal District
6,774 Sqft629 (m²)./Appraisal District
Extra details you may need to know
Exclusive Right to Sell/Lease
Interior
Full Secondary Bathroom Down, Half Bath, Secondary Bath(s): Double Sinks
2 Bedrooms Down,En-Suite Bath,Primary Bed - 1st Floor,Split Plan,Walk-In Closet
Breakfast Bar,Butler Pantry,Instant Hot Water,Island w/o Cooktop,Kitchen open to Family Room,Pantry
1 Living Area, Butlers Pantry, Family Room, Formal Dining, Gameroom Up, Kitchen/Dining Combo, Living Area - 1st Floor, Utility Room in House
Electric Dryer Connections, Gas Dryer Connections
Ceiling Fans, Digital Program Thermostat, High-Efficiency HVAC
Alarm System - Leased, Brick Walls, Dryer Included, Fire/Smoke Alarm, Refrigerator Included, Washer Included
Exterior
Public Sewer, Public Water
Back Yard, Back Yard Fenced, Clubhouse, Fenced, Jogging Track, Patio/Deck, Trash Pick Up
Lot Information
6,774 Sqft.
629 (m²)./Appraisal District
If you like this property and are also considering selling your current home now, you may find out how. Request your home selling analysis report featuring Recently Sold, Market Analysis, Home Valuations, and Market Update.
Start Selling your Home
Information source
Houston Association of REALTORS®
Source last updated Apr 15, 2026 at 01:47 PM
Listing last updated Apr 05, 2026 at 09:26 PM
View website →
Check out assigned and nearby schools along with their detailed ratings and essential information to help you make informed decisions.
Assigned schools
View nearby schools 
Notice & Disclaimer
School information is computer generated and may not be accurate or current. Buyer must independently verify and confirm enrollment. Please contact the school district to determine the schools to which this property is zoned.
Copyright© 2026 , HOUSTON REALTORS® INFORMATION SERVICE, INC. All Rights Reserved. Data Not Verified/Guaranteed by MLS